给你的生活一点颜色,让它不再枯燥。
业主是一对新婚小夫妇,女主人活泼可爱,男主人成熟幽默。两人找到公司做设计的时候可是足足给我们撒了一地的狗粮!两位都不是秦皇岛本土人,大学同学,从相识相恋,再到相守相依。如今,经过两人的共同努力。购置了一套爱的小窝。男孩说:“我知道城市人家贵,可是我知道一分钱一分货,而且我要给我爱的人最好的。”此刻,你是不是也被狠狠地撒了一把狗粮呢?嘻嘻
爱的小窝地址:森林逸城
爱的小窝面积:86㎡
小窝装修风格:地中海风格
设计施工:秦皇岛城市人家

男女主人的婚纱照哟

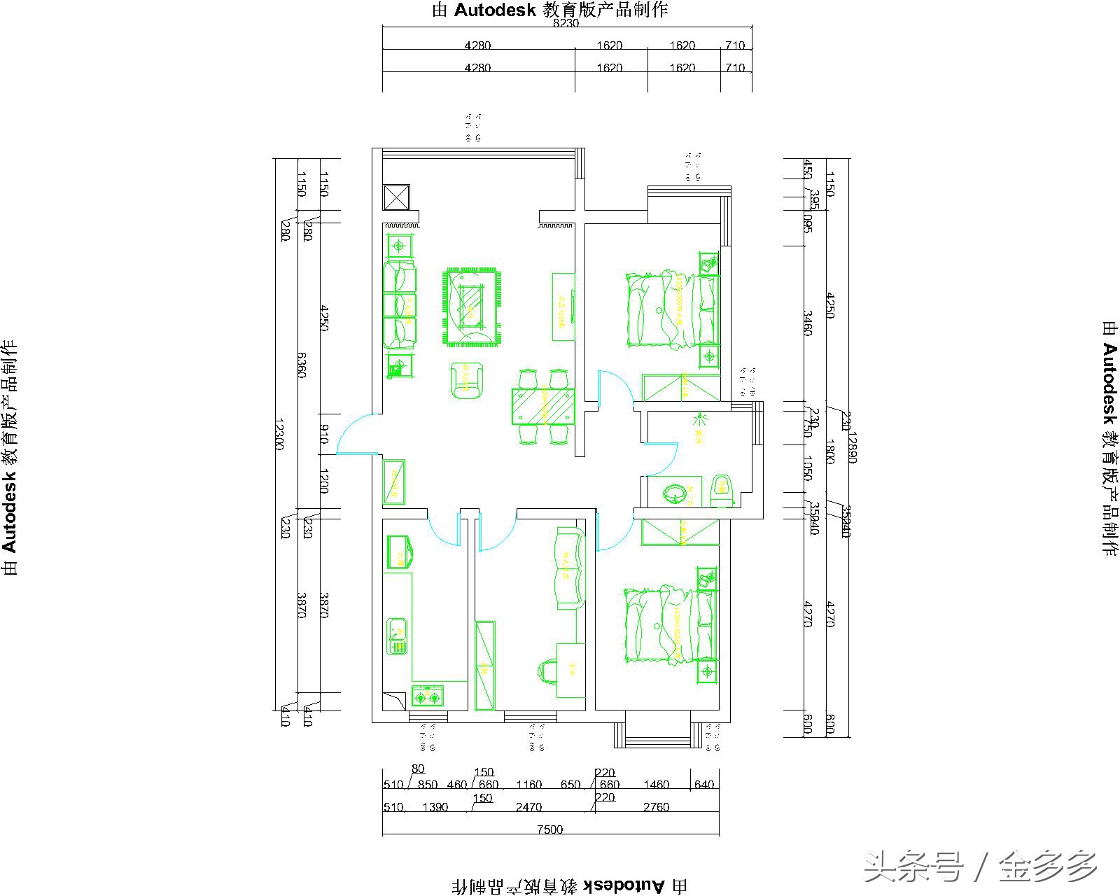
平面布局图

蓝蓝的海得颜色是女主人最爱的颜色,也是对这个海滨城市最好的诠释。

客厅位置
房间墙面做了淡淡的淡黄色,还有墙面的石膏线,也清晰了功能的分区。布艺沙发,木质餐桌椅。回到家就是满满的温馨感。

客厅餐厅位置
简单的家具,却每一处都是精致的生活。

客厅沙发背景
咨询微信:15833350597 QQ:1240069007
如果您是待装修的业主,有意向深入了解家装设计事项,请联系秦皇岛城市人家装饰,并把您的需求告知,我们将会为您安排好相匹配的设计师为您提供专业、顶尖的设计服务。
免费量房申请,请编辑信息(小区名称+户型面积+风格)发送到15833350597,城市人家为您提供专属服务!