案例名称;现代简约
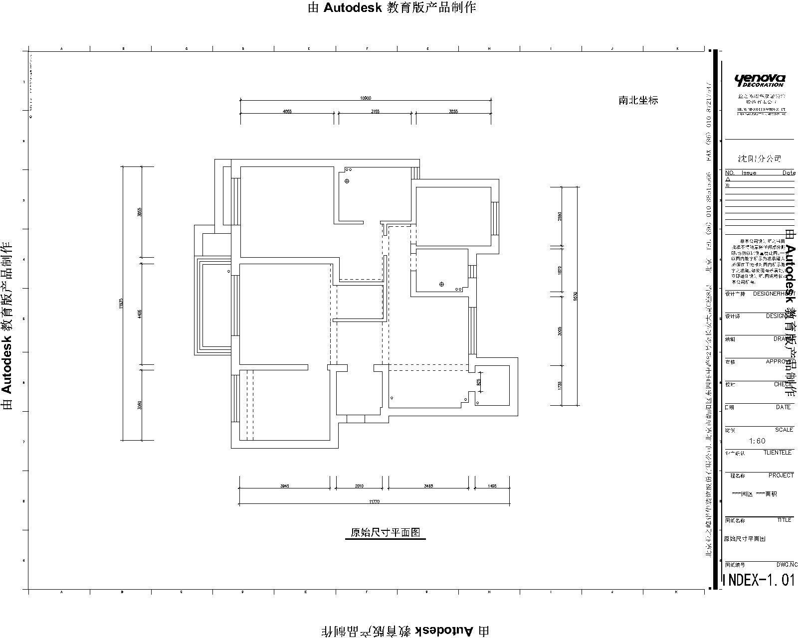
工程地点;保利海上五月花
户型面积;4室3卫 180平米
工程造价;25万
设计说明;本案为三口之家的简约风格,整体设计色调偏灰色系,凸显青年人的时尚与品位,地面用色调柔和的柔光砖,墙面搭配素色壁纸,顶面的设计方案,突出棚面的层次,又增大空间的开阔感,功能需求每个空间都有储物的功能,增大了使用功能。








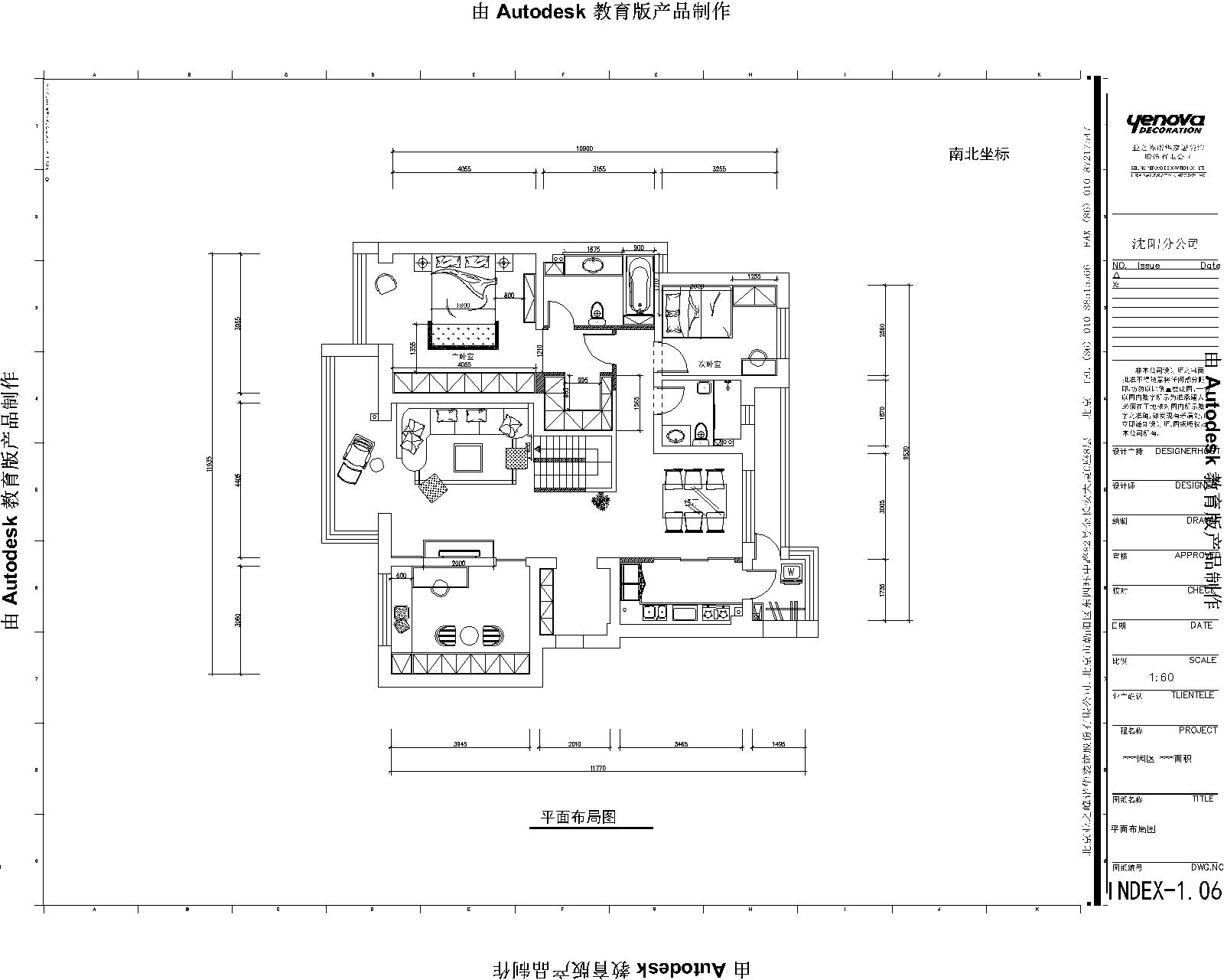
案例名称;现代简约
工程地点;保利海上五月花
户型面积;4室3卫 180平米
工程造价;25万
设计说明;本案为三口之家的简约风格,整体设计色调偏灰色系,凸显青年人的时尚与品位,地面用色调柔和的柔光砖,墙面搭配素色壁纸,顶面的设计方案,突出棚面的层次,又增大空间的开阔感,功能需求每个空间都有储物的功能,增大了使用功能。







