一:如何进行一次有效的设计
1:了解自己的需求
根据下面我给的这个表格,确定自己需要什么。与需求无关的,除非喜欢的要死了,都不要往房子里搁。
基本情况:
*户型:
*长居人口: 人
*居住性质:常住 偶尔居住 渡假 出租
*生活习惯:1、交际:交际广泛 偶有交际
2、爱好:收藏 影音 宠物 健身
3、作息:正常 (早 晚)起 (早 晚)睡
4、工作:上班 SOHO
*饮食习惯:1、烹饪方式:中餐 西餐 在家多 在外多
2、用餐习惯:餐厅用 客厅用
3、厨房设备:传统 现代电器
*洗浴习惯:1、频率:
2、时间:早起 晚间
3、方式:淋浴 浴缸 兼有 桑拿
4、情调:独立梳化台 透明浴室
*收纳习惯: 1、家中物品分类习惯:按种类 按使用 按季节
2、谁的衣物最多:
3、杂物如何收纳:
4、是否需要餐边柜展示餐具及红酒:
5、家中藏书量:
*其他: 1、有无旧家具或其他特殊物品需安置:
2、对之前的装修有何借鉴及惋惜:
3、此次装修预计更换周期:
4、其他特殊需求
风格定位
*个人风格及喜爱的色彩:
*对哪个地域的文化生活感兴趣:
*是否有宗教信仰:
*是否讲究风水:无 比较讲究 非常讲究
*喜欢何种类型装饰品:
*希望一次性到位还是慢慢积攒:
*有无收藏需展示:
*列举喜欢的装饰风格
这些问题弄明白,你也就对自己的房子怎么设计有个大概的想法了。
2:进行平面规划
A:原始平面分析
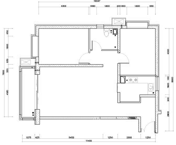
像下图这样,画个原始平面,配合现场照片。截图可能不太清楚,看个意思吧。

B:根据之前做的客情分析,做房间的功能规划

平面布置方便你斟酌家具电器的位置,之后地面管线排图也在这个图的基础上来做。

这个是用来排砖和计算木地板用量的。设置好砖的大小加上留缝和损耗,你知道该用多少了吧?墙面砖同理。

吊顶位置和面积,还有灯具的设置,以及顶面线路,开关插座预留以此图为基准。
说实话,同样的平面布置,不同的设计师绝对给你做出完全两样的方案出来,平面只是为了布局合理和计算方便。大头都在立面上,按我之前内容里的方法慢慢摸索吧。但是平面是一切的基础,所以如何安排还是很重要的。

看不出来生活,就是摆家具。
然后来看看下面这个案子:

空心的和斜线的墙体都是能够改动的,斜线里有点点的墙是剪力动不了。自己在家能够拿锤子敲掉点墙皮灰层看看,里面是浇筑的或是有钢筋的就不能动,轻质砖的能够动。
上面这个房子没什么大问题,就是没有餐厅的位置,然后厨房太小了。还好那里的墙能够动,所以:

就变这样了。对于3口之家来说,基本生活足够了,当然有时候会遇到家里孩子学钢琴的,就会在孩子的房间斟酌一个钢琴的位置。也许有人说阳台那么大放阳台多好,哼哼,作为学过钢琴的孩子我来告诉你,放客厅的时候一练琴其他人啥也别干了,而且,钢琴不能被直晒好吗?
做成这样以后,你如果会用SketchUp,能够自己模拟一个场景出来,增加直观感:

当然会MAX更好,能够直接做效果图。比如:

如果不会的话,就能够收集一些跟你的户型接近的,你喜欢的网上图片,比如:

注意:以上方法只适用于外行自己DIY或者应对要求不高的初级客户,高端客户有另外的做法,就不说了。
二:选材预算
A:选材
这个问题我在其他答案里说过一些,只说一些不太好选,比重多的。贴过来再补充一些吧。
如何从实用优质的角度挑选合适自己的高性价比产品。一般来说,正规建材市场专卖店的东西质量基本都是有保证的,问题是品牌太多,而且每个品牌都有很多系列产品,所以经常看着就挑花眼了。大品牌当然不管质量和设计都很过关,但是大量广告投放的费用会转嫁在客户身上,必然不便宜。而很多二线品牌也有很多优质的产品,但是你要会选,不然就会事倍功半浪费时间精力和金钱。太专业的术语什么的说了对题主未必有用,所以说些比较实际的。
1-开关面板:外壳和内芯的金属部分够厚度够份量,内边及内部结构用手摸无粗糙挂手感。设计感强,LOGO不会太大,但不管是印的还是贴压的,都很精致。开关压的时候没有滞涩感,触摸式开关不会需要很用力才能触动。插座注意是否圆孔直孔通用。符合条件的品牌就不是太重要了。
2-电线:外皮绝缘层够厚,折几下,不要发脆发白。烧掉一部分外皮,看看里面的铜芯的粗细度。注意区分普通电器和大功率电器不同的用线平数。至于品牌每个地区都有各自的偏好,问问朋友邻居装修比较多用什么,然后质量合格就能够了。
3-水管:有一种PPR玻纤稳态管,比普通的PPR管中间多一个浅蓝绿色的玻纤层,壁厚度硬度韧度都够,内径够大,比普通PPR管防冻防烫防裂性更好,分冷热管。能够百度更详细的介绍和品牌,选择合适自己的。其实水管出问题的不多,要害在连接件上。弯头接头阀门神马的不要吝啬,全铜啦不锈钢啦什么的不能轻飘飘的。
4-防水:首推德国汉高美德兰的柔性防水涂料。这种涂料的优点是刷完以后会形成一层有韧性的防水膜,只要涂的好,不会在墙地接缝和管道处有裂缝,且不会因为楼体下沉造或其他外力原因形成的墙体变形而裂开(不要太大的缝啊)。而且比防水砂浆环保。刷之前要做好基层,大的裂缝处用水不漏填平,太凹凸不平的墙地面用水泥砂浆找平。做好以后把地漏堵住,放水停留24小时做闭水试验,24小时后到楼下看看有没有渗水漏水。
5-砖:这个就更细致专业了,只能大概说说。厨卫的墙砖一般都是瓷片,达不到所谓瓷砖的标准,基本上10元以上一片的算是能够用的,几块钱的就别斟酌了。
地砖以800CM的为例,低于70元的也别斟酌了,低端工装除外。这些价格差别即便表面看起来没什么差别,但是色差、平整度、硬度、防水性各方面都不行,一贴上或是用个2年以后就很明显了,掉瓷、空鼓、裂缝、渗污各种问题。
在这个基础上,墙砖的选择就看你喜欢的样子,搭配装修风格,专卖店的墙砖都配有同款300CM的地砖以及搭配的腰线,没有专业设计师的话,按系列买就好。贴的时候注意要师傅墙地通缝,不然效果打折。大地砖的话,不要被商家各种全抛釉啊半抛釉啊仿古啊抛光啊釉下彩啊微晶石啊这些专业术语吓到,这些都是制作工艺。你只要确定你要亮光砖还是亚光砖就行了。
一般的亮光砖也好亚光砖也好,都是无缝拼接,仿古砖则需要留缝铺贴,看你爱好了。然后是砖的质量,没有专业仪器,只能望闻问切了。首先你要带只钢笔,能挤出墨水的那种。。。然后,在你选的砖的正面背面各来一滴,不让滴的果断走人。好砖渗水很差的,如果墨水停留一阵子擦掉就一个印子当然不能买,或者滴上去很快扩散开也是一样不能买。然后是看剖面,细密光滑没有气泡和杂点为好。然后平放在地上用脚蹭,滞脚的为好滑的不要,劣质的砖就算是麻面的也滑脚。
然后是颜色,一定拿到店外自然光下平放着看,颜色会跟在灯下差非常多。很多细节的纹理和釉面的通透感,在灯下好砖和差砖看的不明显,自然光下一目了然。当然不差钱的话,还是推荐一线大牌,比如马可波罗、东鹏、蒙娜丽莎、金意陶、萨米特、博德,不用担心品质。差钱的话就只能多选选看了~
另外瓷砖的效果跟铺贴的技术有很大关系,好的水泥沙子和好瓦工直线提升砖贴出来的档次。买325或425的,出厂3个月内的水泥。贴砖除了通缝外,套口切割、高度差都要注意,贴完的砖要摸上去接缝处平滑,敲击没有空鼓。不用靠尺的瓦工不是好瓦工。。。
6-板材:好一些用原木板、进口欧松板,价格稍高,质量好,一眼能够看出好坏来。然后是大芯板,也就是木工板,各地有自己爱用的品牌。好的木工板截面干净平整,差的里面是碎木片拼的,让店主一分二破开看看,木工板一分二之后也能够卖出去,不打紧。饰面板分纯木皮的,密度板贴皮的,还有纸的。纯木皮的需要上漆,其他的不用,但是收边不好处理,收边条总是不好看的。这个看价格,4、50以上的算能够用的。石膏板也是看截面,光滑细密孔洞少或没有,外面贴的纸皮光滑平整。
7-木地板:木地板分为实木、复合、竹,三种材料。其中实木分为全实木、多层实木,复合地板分为复合实木、强化复合。
选择正规国产中高档品牌。选择的时候注意地板的厚度,选尽量厚的。复合地板重要的就是基层和耐磨层,好的复合地板基层是木浆和相对环保的胶热压的,差的是纸浆甚至不知道什么建筑垃圾,胶也是甲醛超标的。不管什么地板,表面都有耐磨层,是一种叫做三氧化二铝的透明涂层。耐磨层是论转数的,转数越高越好,一般6000到9000转的家里用就能够了。如果商家提供不了产品数据,能够自己试验。用你的钥匙在样品上划,不是很用力就会留下痕迹就算了,不过正规品牌的质量都是合格的。如果在淘宝买,能够让商家发小块样品,然后用烟头烫一下看看,会不会留下很深的印记,在水里泡几个小时,膨胀会不会太厉害(所有木制品都不防水最多有一定防潮性,但是好一些的地板密封比较好,膨胀不会太厉害)。
后期注意事项:
木地板都是包安装包地脚线的,也有部分特价品不包地脚线。选择地脚线选8CM及以上的,比5CM的漂亮。颜色方面注意跟要房间门一样或接近。然后就是,多么环保的地板还是有一定甲醛含量,平时一定多通风换气,冬天怕冷能够买个空气净化机。
B:预算
你需要这么两个表格:
1:单价清单
当然不只这些项目,你能够选择你所需要的自己做一个。其中的价格是我这里的包工包料的价格。你能够问问你那里工人的价格。后面备注里的是施工用料和工艺,有签合同才用。
然后是项目清单:


这两个都是EXCEL表格,不会的也能够手工来~有几个房子,每个房子都做些什么项目,项目数量,乘以单价,最后一合计,OK~简单吧~
“工欲善其事,必先利其器。”这里我和大家说个实用装修设计工具,和AutoCAD、3dmax等工具配合使用能让装修事半功倍。
( 多图大图预警 )
效果图:


鸟瞰图:

全景图:
点击浏览全景图
操作也挺简单,画户型、摆家具、出效果三步,几分钟就行。
1、画户型
从全国小区里选择户型/导入户型图/自己绘制。

2、摆家具
从左侧模型库里把家具拖进户型图。

3、出效果
跟拍照一样,摆好角度位置拍摄出图。
这个工具还有一些大家可能用得到的功能,这里也简单提一下,有兴趣的自己去摸索。
1、水电布线

2、设计预算清单

3、定制真实家具物品

4、柜体定制

5、吊顶定制

6、支持3dmax模型导入

7、支持导出AutoCAD文件

8、支持VR全景体验
点击体验VR全景房屋
做好的室内设计方案只需几分钟就生成VR场景,戴上VR设备就能够实时浏览并且实现各种更换、移动家居物件等交互操作。

9、支持量房仪导入户型
