为啥建8米面宽的房子?有人是因为本身宅基地太小,但也有的人是自己喜欢小房子。
面宽8米怎么建一栋洋气的小别墅?今天这位福建的小伙,就自己耗时三年,亲手建了一栋全村最洋气的农村小别墅。
房子建好本来做婚房的,无奈找了个城市媳妇,丈母娘要求在城市买房,最后200万卖掉,在市里买了套房。

这是建成后的小别墅。一层文化石做装饰,主体外墙香槟色真石漆。富有乡村气息,又时尚大气,美的不要不要的。
小院大、小两个门,即方便日常起居,有不影响车辆进出。

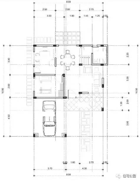
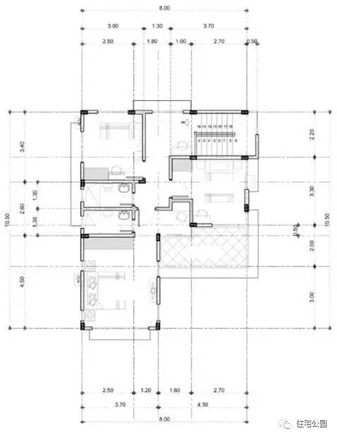
户型平面图
一层敞开式车库,楼顶遮阳挡雨,有更好停车。一个老人房,客厅是特别大,但是也不小,对于小户型来说实用。
卫生间房子楼梯下面,建筑面积最大化的利用。

二层一个大主卧套间,还有两个次卧。总共4个卧室,非常合适农村的户型。总建筑面积约130平方米。

想建这样的小别墅,户型不合适自己?能够定制或者查看更多户型哦。
装修
车库镶贴地砖,院子绿化已经做好,虽然不是什么名贵的植物,但胜在好看。

内墙一样刷香槟色涂料,踢脚线用的木地板简洁却非常大气,最重要的是够美。喜欢简洁风的不妨学起来,经济又好看。

多面开窗,客厅非常敞亮。

楼梯踏步镶贴的木地板,铁艺护栏,更整体风格搭配的非常好。

厨房并不大,没有做完全的U型台,不过也好用就好。唯一的不足是插座预留高度偏低,用起来不会很方便。

二楼主卧。精美的定制衣柜,木质花纹非常精美。

卧室同样多面开窗,大空间的主卧符合现在年轻人的居住喜好。

儿童房粉色系衣柜,因为面积较小,衣柜也没做很大,加了和小书桌。

历史3年,亲自施工,弄到目前花费31万出头,不到32万。
本来是准备买家具做婚房的,但是应丈母娘的要求,去城市生活。刚刚好同村一有钱人家看中了这套房子,就干脆200万卖了,去市里买了房子。

32万,你们觉得这套房子建的怎么样?
微信公众号:新型房屋,500套别墅图纸,别墅庭院设计施工、行家答疑。