让我第一次惊艳到的就是Coco的效果图,厚实,质朴,的风格正是我所想要的。

原始结构图

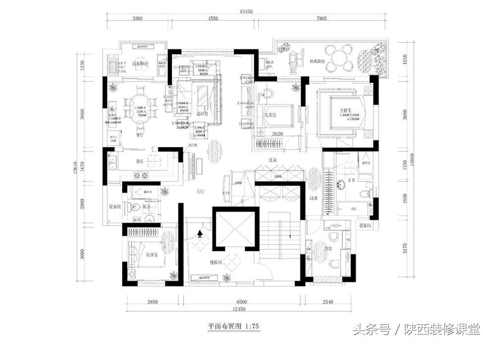
平面布置图,我看中的美式家具个头比较大,空间太小的话可能会显的比较拥挤,
所以在格局上Coco尽量设计了更为宽敞的客厅和餐厅。可能是因为我在英国留
学过一段时间,所以我对硬装的装修要求比较简单,没有电视背景墙,也没有灯槽
吊灯,墙纸也没有,整体显得比较素一点。

客厅一角,客厅家具大部分都是harborhouse的,非常非常纯正的美式,非常的自然
朴实,地毯说来就好笑了,是买壁炉送的,最终却没放在壁炉下面。

客餐厅之间的挂钟可不是淘宝货,好几个朋友来看都说挺好看的 是不是淘宝上买的,
真的是哭笑不得,这是我去法国旅游时在一家卖小玩意的店里买的,觉得挺有味道的,
就先买回来了,装修完准备搬家时才翻出来的,问了下Coco的意见,最后放在了这里

泡上一杯咖啡或者奶茶,静静得坐着沐浴窗外照射进的日照,静静的看上一部温馨的电影,
双休日我最喜欢做的事就是看看老电影,节奏很慢的那种,泡杯咖啡,点跟烟,相比电影
院更加的自由舒适。

相比客厅颜色比较跳跃的蓝色窗帘是Coco陪购的,之前跟内人在剪刀石头布挑窗帘
和家具,窗帘真的是让人头疼,根本看不出好看难看,心里没有什么底,最后还是拉上
Coco去选的,1个小时不到就选下来了,所以说设计师还是非常重要的。

是不是充满了自然质朴的美式味道?

在挑沙发的时候正好,看到这款美克美家的整体电视柜,很好的充当了电视背景的功能,
又在另一方面增加了储物空间,因为在英国留学,所以去欧洲城市都很方便,就跟国内游一样。
很多在欧洲旅游时买了以后闲置的小玩意儿也能够往里面塞,还是蛮有感觉的。

小挂钟露头了


在英国,基本上都是靠暖炉取暖,无论是一体的还是电子的,基本上看不到空调,也许
是因为这个原因所以我个人对暖炉情有独钟,所以在过道上放了一个电子暖炉,既填充
了空白的墙面,也不占用玄关的空间。

餐边柜上的墙面挂着我家那位喜欢收藏的手绘风格瓷盘多些生活情趣。
餐桌这边,特意买了不同于其他餐桌椅颜色的儿童椅,凸显出宝宝的特
殊地位,哈哈。

温馨的小圆桌,一家人能够靠的更近

最早还在跟内人一起逛过画廊,说要弄一副大画挂在床头,蛮洋气的,后来因为选的
家具背板太高了,就挑了一对比较精致的小挂画放在两个床头柜的上面,也是很不错
的点缀。

书房特地选了两个颜色不一样的办公桌,我跟内人很喜欢一起窝在书房上网
,但基本上她在这里更频繁一些,我更喜欢待在客厅。

小孩的房间不需要太过花哨,也不需要卡通的墙纸,为了斟酌到将来长大了太过童趣
可能还要重新返工,索性就这样简单一点的好。床上方架着的画都是小家伙的名作。

彩色的条纹窗帘让单一的原木色家具空间也充满了童趣。

个人不喜欢花哨豪华的卫生间,干净方便是最重要的,所以主卫还是以人性化
为主,台盆柜特地选了一个超大的,台面上能够放很多东西。

一个淋浴房,一个浴缸,想怎么洗就怎么洗啦

次卫用的是科勒的欧式立柱盆代替笨重的台盆柜,因为次卫比较小,台盆柜放不下了。

最后我非常喜欢的阳台,瓷砖就是Coco帮我们选的,非常漂亮
稍许添上一点绿化,很舒服。

午后坐在这里看看书上上网非常不错,在斟酌要不要在这里添置一张
小茶几能够喝喝茶什么的
