一、现行保温系统缺陷
国内应用建筑保温隔热的材料一般要求低吸水率、高强度、低膨胀系数、低导热系数等要求,但目前国内市场现行的主要保温系统如XPS、EPS具有很大缺陷:有机材料不符现代建筑对防火安全之基本环保要求、材料容易老化、变形、剥落而在2-3年内发生墙体漏水;维修困难;后期维修成本不断加大等。
二、泡沫玻璃保温板的优势
而泡沫玻璃保温板是以碎玻璃为原料,经高温发泡成型的多孔无机非金属材料,具有容重轻、强度高、导热系数小、吸水率低、无毒、不燃烧、耐老化、防水、不易老化、尺寸稳定、绝缘、与各类胶结材料粘接性好等功能和特点,是一种新型的环保多功能建筑保温材料。合适建筑物外墙、地下室以及屋顶防水、保温。
三、泡沫玻璃保温板施工工艺原理
泡沫玻璃板外墙保温体系的基本构造层由内到外应为:粘接层、泡沫玻璃板保温层、防护层、饰面层。其中粘接层主要用于墙体基层的找平,能够保证泡沫玻璃坚固的粘贴在墙体上,护面层主要是为了保护强化保温系统的坚固性,防止渗水等。

四、泡沫玻璃保温板施工工艺流程
在泡沫玻璃保温板施工过程中应该严格按照操作流程和方法来实施作业,通过合理的操作和作业使得该成套施工工艺发挥最好的效果,其所对应的全过程施工工艺流程如下图。


五、泡沫玻璃保温板 施工要点
1、进场检验
泡沫玻璃保温板进场检查产品合格证、性能检测报告,龄期超过28天以上。
2、弹控制线挂基准线
根据建筑立面的设计和外墙保温的技术要求,在墙面弹出门窗水平、垂直控制线,在建筑外墙大角挂垂直基准线,每个楼层适当位置挂水平线,以控制墙面的垂直度和平整度。
3、基层处理
清理砌体表面浮灰、浆,剔除柱梁面凸出物,墙体水平用专用腻子填平,墙与框架柱交界处竖缝填平并批300宽腻子贴加强网格布一层压实。
靠尺检查并对个别凹面先行批刮。
4、配制专用粘接剂
1)按照专用粘接剂说明书配置粘接剂,其稠度可根据气候情况稍作调整,但用水量增减幅度不得大于5%;
2)配制时采用手持式电动搅拌器充分搅拌均匀且稠度适中;
3)配制好的专用粘接剂应在60分钟内用完,已凝结的专用粘接剂不得使用。
5、做控制灰饼
在墙角处贴标准厚度控制泡沫玻璃板,作控制“灰饼”,拉水平控制线。
6、泡沫玻璃保温板施工工艺
1)外墙面粘贴泡沫玻璃板时,应先将墙面基层找平,润湿无明水,将粘贴的泡沫玻璃表面用压缩空气或刷子清除表面浮灰,在背面和侧边用带齿抹子刮约2mm厚粘接砂浆,同时在墙面刮抹2mm厚粘接砂浆,立即将泡沫玻璃贴于墙面,用力挤压与周边已贴好的块体平齐,然后用橡皮锤轻轻敲打,使它粘接坚固,块与块之间粘紧,多余砂浆挤出时,应立即刮去。
2)外墙泡沫玻璃保温板与基层墙体粘贴面积不少于50%,根据建筑高度必要时设置金属托架。
3)粘贴时一般从上而下,沿水平方向粘贴。(也可从下而上,最下一块施工时,为避免下坠移动,应加支撑使之粘牢不滑为止)。每层间水平对缝,竖直方向应错缝。错缝长度为1/2标准板长,并不小于100mm,最小非标准保温板尺寸不应小于150mm,且不应设置在边缘处。当遇到不能整块粘贴时,需事先量好尺寸,就地按所需尺寸锯割,不可随意裁切。
4)粘贴门窗洞口及角部位处保温板时,应采用整块保温板切割成形,严禁产生垂直通缝,严禁将非标准板粘贴在洞口角部。

洞口处切割及接缝距离要求示意图
5)外墙面安装卡钉(胀钉):
墙面高度超过4m不分格和楼层超过20m以上的高层建筑,应增加固定卡钉,卡钉间距1.2m左右,固定点宜在泡沫玻璃板块体交角处,须进入墙体锚固深度30mm。

固定件布置图
6)对罩面层施工的时间要求:
外墙泡沫玻璃罩面层施工时,应在泡沫玻璃粘贴2天后,方可施工罩面层,施工前应对粘贴的泡沫玻璃保温层进行检查,平整度超过2mm的应磨平,板块间隙不饱满时应补好。饰面涂料或粘贴面砖时,待罩面层砂浆硬化后,一般1-2天即可进行装饰层施工。
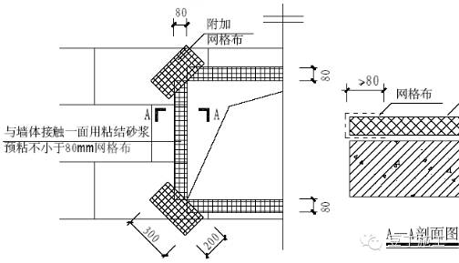
7)网格布的铺装:
将贴好的泡沫玻璃保温层表面浮灰清除并洒少量水湿润,然后抹罩面砂浆3mm。抹平后即铺网格布,用抹子将网格布压入砂浆中,网格布相互搭接宽约100mm,铺网格布应平顺、不皱折、脱层,待砂浆初凝后,再抹罩面层2mm,并抹平、压实、压光。如墙体设计不铺设网格布时,在墙体交角处的窗口及墙体转角处各加一层300mm×200mm的45°斜向网格布进行加强,或预留100mm宽作包边处理。并将大面铺设的网格布沿洞口的转角拐进由粉刷基面粘贴。
网格布的铺设应沿垂直及水平面方向拉直绷平,并将弯曲的一面朝里,用抹平抹子由中间向上下左右周边将网格布抹平,使其紧贴底层轻质抹面砂浆。

门窗洞口附加网络布示意图
8)孔洞与修理
(1)当脚手架与墙体的连接拆除后,应立即对连接的孔洞进行基底的清理处理,并用轻质抹面砂浆填补并修抹平;
(2)应使用与原保温板相同规格尺寸进行修补。预切一块与孔洞大小形状和厚度相同的保温板并打磨其边缘部位,使之能紧密填入孔洞处;
(3)待轻质抹面砂浆表面干燥后,可在保温板背面涂上粘接剂。此时应注意不要涂抹在其四周边缘上。然后将保温板慢慢塞入孔洞,使之能粘在基层上。剪一块大小能覆盖整个孔洞的网格布,与原有的网格布至少重叠100mm。
(4)在保温板表面涂抹轻质抹面砂浆,埋入网格布并用抹面砂浆抹平。
(5)对于墙面损坏处的修补同上。
9)分格缝等变形缝设置
外保温系统应结合立面设计在墙面合理设置分格缝,水平分格缝间距不宜大于6m,垂直分格缝间距不宜大于12m。如建筑物逐层设有腰线或建筑平面已有凹凸,亦可不设水平或垂直分格缝。
10)做滴水槽窗台
保温层施工完毕后,根据设计要求拉滴水槽控制线。
用壁纸刀沿线划出滴水槽,槽深15mm左右,用抗裂砂浆填满凹槽,将塑料滴水槽吊嵌,凹槽与抗裂砂浆粘结坚固。
在窗台面按设计要求做热镀φ6.5钢筋栅,保护窗台保温层。
六、验收
外保温墙面层的允许偏差和检验方法应符合下列要求
| 项次 | 项目名称 | 允许偏差/mm | 检查方法 |
| 1 | 立面垂直度 | 3 | 用2m垂直检测尺检查 |
| 2 | 表面平整度 | 2 | 用2m靠尺和塞尺检查 |
| 3 | 阴阳角方正 | 3 | 用直角检验尺检查 |
| 4 | 分隔条直线度 | 2 | 拉5m线配合钢直尺检查 |
| 5 | 踢脚板上口直线度 | 2 | 拉5m线配合钢直尺检查 |
七、对比分析
保温材料性能特征对比
| 泡沫玻璃保温板建筑保温体系 | 现有建筑保温体系 |
| 表面密度小,强度高,泡沫玻璃表面强度在0.5Mpa-1.0Mpa。 | 强度较低,岩棉板强度在0.05Mpa-0.2Mpa;EPS与XPS保温板一般在0.05Mpa-0.5Mpa. |
| 保温性能好,导热系数在0.05W/m.K左右 | EPS与XPS保温板导热系数一般在0.04W/m.K左右,岩棉板导热系数在0.05W/m.K左右 |
| 泡沫玻璃膨胀系数较低,尺寸稳定性好,与砼、砂浆膨胀系数相近 | 膨胀珍珠岩保温板、EPS与XPS保温板膨胀系数相对较大,尺寸稳定性较差,其抹面层容易开裂,从而加速其老化、失效速度 |
| 泡沫玻璃为不燃材料,可用于一些防火要求较高的施工部位 | 建筑要求使用的EPS与XPS保温板均为难燃级别,在一些有防火要求的部位不能使用,而且EPS与XPS保温板在燃烧时会产生有毒气体,增大了火灾的危害程度 |
| 泡沫玻璃不易被老鼠、昆虫等动物破坏,可保持建筑物清洁 | 岩棉保温板、膨胀珍珠岩、EPS与XPS保温板均无法防止虫、鼠等咬噬,不仅保温性能下降,并且给住户带来一些卫生安全隐患 |
—— THE END ——
在微信号豆丁施工回复1等获取施工技术资料
豆工施工隶属豆丁建筑网(http://jz.docin.com)
技术文档丨行业资讯丨交流平台