戳我,获取全网最全制冷空调视频培训资料
今天给大家免费赠送的书籍是:
《中央空调模块机控制电路维修图解全攻略》

本书内容涵盖了:中央空调主板元器件、中央空调控制原理,开利、海信日立、美的、大金、三洋、约克等十余个空调品牌控制板维修的教学!
看看本书的目录:


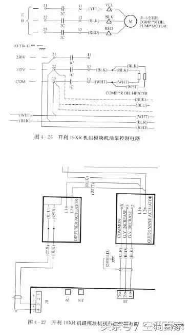
简单看看书中的内容:
开利控制板维修版块



海信日立控制板维修版块




美的控制板维修版块:


大金空调控制板维修版块:

好了,篇幅有限,不一一介绍了;
能够说,只要你安安心心看看这本书,相信对你中央空调模块机的维修会有一定的帮助;
怎么获取本书?

今天给大家免费赠送的书籍是:
《中央空调模块机控制电路维修图解全攻略》

本书内容涵盖了:中央空调主板元器件、中央空调控制原理,开利、海信日立、美的、大金、三洋、约克等十余个空调品牌控制板维修的教学!
看看本书的目录:


简单看看书中的内容:
开利控制板维修版块



海信日立控制板维修版块




美的控制板维修版块:


大金空调控制板维修版块:

好了,篇幅有限,不一一介绍了;
能够说,只要你安安心心看看这本书,相信对你中央空调模块机的维修会有一定的帮助;
怎么获取本书?
