内容介绍:
关于梁箍筋加密区的构造在施工图集上有相关的规定,在施工图中一般也是“按《16G101》-1中的相关规定执行”来进行设计的,本来并不是什么复杂、难懂的问题。
但在最近接触到的几个项目中,设计人员对梁箍筋加密区的要求与施工图集相比有较大的变化。如果不注意可能会带来重大质量隐患,而且对工程造价的影响还非常大,有必要对这个问题引起重视。
本文就两个具体案例进行分析,提出关于梁箍筋加密区的注意事项。
一、梁箍筋及箍筋加密的主要功能:
在分析案例以前,先来看看梁箍筋及箍筋加密的主要功能都有哪些:
1.承受剪力:
钢筋混凝土梁中的箍筋最重要的功能就是承受剪力。在房屋建筑中,通常梁承受板传来的均布线荷载,其内力如下:

简支梁均布荷载下的内力图
在线荷载q的功能下,简支梁中存在线性变化的剪力,剪力在梁端最大,中间最小。梁箍筋垂直于梁轴线、平行于剪力方向布置,以此来承受构件中的剪力。
因为梁端剪力通常较大,因此在梁端一定范围内加密箍筋也是为了更好地确保构件的承载能力。
正弯矩在梁下部产生拉应力,所以要在底部配置纵向受力筋,以此来承受弯矩产生的拉力。
以上是最简单的受力模型,实际情况并不是这么简单。在房屋建筑中,大多不是简支梁,而是多跨超静定连续梁。
连续梁在支座处是有负弯矩的,而跨中正弯矩会相应减小,简支梁支座处弯矩为零。当然,简化模型也能阐明箍筋承受剪力、纵筋承受拉力的原理。
毕竟作为施工单位的技术人员在结构力学上做到“定性理解”就能够了,不一定要精确到具体的量上。
2.约束梁端混凝土及纵向受压钢筋:
梁中配置箍筋的第二大功能就是约束混凝土,特别是梁端的混凝土以及纵向受压钢筋。
钢筋混凝土结构的基本原理是“强节点弱构件”、“强柱弱梁”,因此结构在荷载功能下,塑性铰首先会出现在梁端。
在梁端一定范围内箍筋加密,就是为了对塑性铰区的受压混凝土提供约束,并约束纵向受压钢筋,防止保护层混凝土压碎,造成钢筋过早屈服。箍筋及箍筋加密区对提高塑性铰区的延性能力发挥重要功能。
2.构造功能:
前两者的箍筋都是作为“受力筋”而存在的,当按承载力计算不需要配置箍筋时,仍然需要配置构造箍筋(《混凝土结构设计规范》9.2.9)。主要功能是架立纵向受力筋,以及防止混凝土开裂。
二、施工规范及图集中对梁箍筋加密区的规定:
- “高规”、“混规”、“抗规”对框架梁箍筋加密区的规定:
《高层建筑混凝土结构技术规程》、《混凝土结构设计规范》、《建筑抗震设计规范》中对梁箍筋加密区的规定是一致的,如下表:

设计规范对梁箍筋加密区的规定
2.《16G101-1》图集对梁箍筋加密区的规定:
施工图集是规范的具体体现和延伸,图集对框架梁的箍筋加密区规定如下图:

施工图集中的规定
这是框架梁箍筋加密区最熟悉、用得最多的构造,具体内容参见《16G101-1》88页的相关内容。
当然,在施工图集中梁箍筋加密区并不仅仅这一个做法,比如:非框架梁、“半框梁”、井梁等的箍筋加密区还是有区别的,在前作《施工技术与造价知识荟萃05-半框梁的构造及施工管理要点》中有详细分析,此不不再赘述。
三、案例1梁箍筋加密区做法及分析:
案例肯定是有别于设计规范和施工图集的,而且差别还比较大,以下逐一分析说明。
该案例是剪力墙结构的多层住宅建筑,在梁平法施工图中,除了约定了“主次梁搭接处附加箍筋的设置”外,设计人员还对同一根主梁上存在多根净距较小的次梁时,对主梁箍筋进行加密的构造,如下图:

附加箍筋设计说明

主梁箍筋加密构造大样
虽然该构造名为“主梁箍筋加密大样”,但与前面提到的“框架梁箍筋加密区”不是同一个概念。
虽然这些箍筋都是用来承受剪力的,但规范和图集的“箍筋加密”主要是承受梁端的剪力及约束塑性铰区混凝土。
而此处主要是承受次梁集中荷载带来的剪力,其意义更接近于“附加横向钢筋”,即:附加箍筋和吊筋。
而该设计大样对集中荷载处横向钢筋的设计又与施工图集及规范有所区别,必须引起施工人员的重视。附加横向钢筋的通常做法在前作《施工技术与造价知识荟萃10-附加横向钢筋的功能及构造要求》中有详细分析,此处不再赘述。
该大样图中,箍筋加密宽度“h”,就类似于成45°配置吊筋的范围,这里不再配置吊筋,全部由箍筋承担该范围内集中荷载引起的剪力突变。
对于次梁之间净距较小时(不大于500,不大于主梁高度),此范围内主梁箍筋需全加密。此设计意图在满足承载力前提下,主要还解决了附加箍筋数量可能存在重合的问题,而且也便于施工。
在该项目的施工图中的确存在多处这样的梁,如下图:

需要按大样施工的梁
以上两个地方,次梁之间净距太小,不足500mm,因此需按设计大样对主梁箍筋进行加密处理。
如果按此大样图施工,箍筋数量明显就比一般的主次梁节点多了。不仅要在施工前按此大样配料,在施工中要对此构造单独交底、检查,否则很容易漏掉。
另一方面,造价人员必须按此大样构造建模或手动计算,总之工程量不能漏算、少算。算量的问题,后面统一说。
四、案例2梁箍筋加密区做法及分析:
该案例在两个项目上都出现,为框架结构,钢筋混凝土厂房。在梁平法施工图中,同样有关于主次梁处附加箍筋的设计说明,仍然是每侧三道。然后在主梁的箍筋加密区方面,又有不同的设计。
项目1:

主梁和一般次梁的箍筋加密区构造大样
该箍筋加密区的构造原理和附加横向钢筋就不一样了,而是和设计规范中梁箍筋加密主要承受梁端剪力的原理基本一致,只是范围更大而已。这里还要注意,非框架梁也设计了箍筋加密区。
先来看看在两个集中荷载功能下的内力情况(为了方便,借用了网络上的图,自己列式计算,能阐明道理就行):

剪力图

弯矩图
这是梁中两个集中荷载功能下的剪力和弯矩示意图,能够看出:
在集中荷载两侧,剪力突变,出现最大值。而两个集中荷载之间的剪力最小,为两集中荷载的差值。如果两荷载离支座的距离一样,则跨中剪力将为零。
在集中荷载处,弯矩出现拐点,达到峰值。如果两荷载离支座的距离一样,则弯矩图为等腰梯形。
就上图而言,梁的AC段和DB段存在较大剪力(而CD段中的剪力相对较小),应按承载力计算后进行箍筋加密设计。该项目的梁箍筋加密区扩大到次梁边就是这个原理。这样的构造是远远超过了规范中max{500;1.5h}的规定。
上图中的数字能够无视,理解剪力和弯矩变化规律即可。如果要得到具体的数值,需要计算,有兴趣的,能够看下面的计算步骤,已知P=25.3KN:
∑Y=0,则有:Ra+Rb=2P
∑Ma=0,则有:Rb*1265-P*200-P*(1265-115)=0
以上两式求得支座反力:
Ra=23.6KN,Rb=27KN
则AC段的剪力:V1=Ra=23.6;CD段剪力:V2=23.6-25.3=-1.7;DB段:V3=-Rb=-27
AC段弯矩:M1=23.6*X,X(0~200)mm,线性函数,最大值=23.6*0.2=4.72
CD段弯矩:M2=23.6*X-25.3*(X-200)=,X(200~1150)mm,线性函数;当X=200mm时有最大值4.72,当X=1150mm时有最小值3.11,能够不用计算,由两顶点连线即可。
DB段弯矩:M3=Rb*X,X(0~115)mm,线性函数,当X=115mm时有最大值3.11
该案例属于井梁结构,在主梁上的两个次梁把主梁每跨三等份,在这种情况下,CD段中的剪力达到最小,理论上等于零(集中荷载大小一样,间距一样)。
按该大样施工的结果如下图:

不需要箍筋加密的地方
除图中画圈范围箍筋不加密外,不管是主梁还是次梁,其他部位均要进行箍筋加密。由井梁和框架梁构成的九宫格中,共24段梁,其中16段需要箍筋加密。
此施工结果与图集构造相比,增加了钢筋约30吨,工程造价增量了大约18万。
项目2:

框架梁箍筋加密区构造
上图仍然是一个框架结构的钢筋混凝土厂房的梁箍筋加密区构造。在梁平法施工图中,其梁箍筋加密区方式与项目1类似,不同之处在于“只是对框架梁这样要求,而对一般次梁无要求”

箍筋加密区范围
在井梁和框架梁构成的九宫格中,有8段需要箍筋加密,其他16段不需要箍筋加密。
案例2中的两个项目结构形式一样,但箍筋加密区的构造不一样,主要还是出于设计计算的结果不一样,箍筋不仅仅要满足配箍率,还要能承受根据荷载计算的剪力。
五、在施工及造价管理中的注意事项:
1、在施工中,施工人员应熟读图纸,严格照图施工,不能只是按规范、图集或以往经验来施工,否则将出现严重的质量隐患。
“熟读图纸,领会做法,编制方案,指导施工”在任何情况下都是施工技术人员必须也必要的技术管理动作。
2、在发现与设计规范或施工规范、图集差异比较大的设计或构造时,还应与设计人员沟通,了解其设计意图。并且能引导造价人员针对差异性进行成本分析,为算量计价做好准备。
3、在造价方面,同样要按设计图及其说明来计算工程量,要经常与施工技术人员沟通。建立模型而不去注意“构造说明”,了解实际施工情况,那就是“闭门造车”,通常会漏算、少算工程量。
就案例2来说,箍筋加密区的范围远远大于图集或规范的要求,对工程量的影响是非常大的。
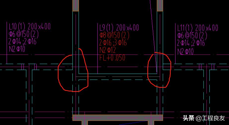
对于案例1,因为箍筋加密区的长度由梁的布局决定,不具有可复制性,只有针对这些梁跨在梁原位标注中逐个修改箍筋加密区的长度。毕竟符合箍筋加密的梁是少数,逐个修改的工作量也不是很大。如下图:

逐跨修改梁箍筋加密区
对于案例2,井梁结构的跨度和间距基本上是一致的,案例项目的梁跨9m,次梁之间的间距3m,其箍筋加密区长度大多数为3m。
对于这种有规律的箍筋加密区,能够在工程设置中统一修改“箍筋加密区”长度,再针对个别尺寸不同的地方进行单独修改,既能保证准确率又能提高工作效率。非框架梁同样修改,如下图:

统一修改梁箍筋加密区的计算设置
总结:
- 施工要熟读图纸,领会设计意图,施工图才是施工的第一指导文件。在正式施工前,施工人员一定要完全领会设计意图,并制定相应的施工方案。不要想当然地按照以往“经验”施工。
- 梁箍筋的功能主要是:承受剪力、约束受压钢筋和塑性区混凝土、架构纵筋及抗裂构造。
- 梁箍筋加密区的存在就是为了提高梁端抗剪承载力和构件延性,所以一般都是在梁端一定范围内布置。
- 梁中的附加横向钢筋主要是为了应对集中荷载而设置的,虽然都是在箍筋上进行构造,但其本质并不一样。