

美业美学
3个国内外美甲沙龙设计案例欣赏。
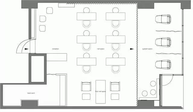
北京:Lily Nails美甲空间设计
▷ 这个案例是Lily Nails 2017年的项目,设计师为韩文强、王晓汀。这个空间尝试将二维的花纹图案延伸至三维空间之中,产生具有女性气质的柔性环境,提升美甲店的识别性和舒适性。


▲入口
▷ 店铺位址在蓝色港湾地下广场边上,是一个不规则的狭长形状。因此设计采用了直线与弧线交错的墙面重新整合了室内界面。弧形墙面划分出美甲、美容、接待、库房等不同的功能区域,满足空间从开放到私密的不同需求,多样的尺度和形状也丰富顾客们的环境感受。

▲前台

▲走廊
▷ 墙面图案选择了蕾丝花纹这一极具女性特色的服饰花纹进行抽象变形,最终由6毫米的钢板激光切割来实现。花纹的位置和尺度都参考了内部空间之中人的视线关系。



▲美甲区
▷ 花纹将所有的墙面转变成半透明,跟随人的行走,不同的花纹相互叠加,产生层次性感受。店面由黑褐色的热轧钢板封闭起来,仅留下一个透明的入口。当顾客从喧闹的商场走进店内,纯静、抽象的花纹空间能让人逐渐平静下来,享受属于自己的美丽时光。

▲洗手台

▲平面布局图

▲分析图

▲立面图
日本 Kolmio+LIM美甲沙龙
▷ Kolmio+LIM美甲沙龙位于日本第三大城市大阪,是一间于2013年9月完工的项目,由东京本土设计师Yusuke Seki设计。这里的环境清新自然,令人放松,并在设计哲学上优雅契合美甲店各方面主题。“Kolmio”在日语中指一种复杂的三角形装饰物。设计师在商店的动线上安排了一个三角形标志性的墙洞以契合主题。



▷ 日本人口密度高度集中,且在全球范围内来说,生活、工作压力也首屈一指。如何更好地调和顾客看到陌生环境的心理反应,是店面装修过程中Yusuke Seki最看重的。他希望通过色彩和材料,打消人们高度紧张的情绪。
▷ Yusuke Seki认为,冷色调会令人产生一种抗拒压抑的气氛,而暖色调则令人平和舒缓。不同的心态,在美甲的过程中会产生不一样的效果。如果美甲店在设计中过多使用冷色作主要的装修色,会使得顾客无法产生相应的舒适感。当顾客心理抗拒感产生时,必然是不会成为长期忠实的顾客,这对于美甲店是一个致命伤。同样,过多的使用暖色中明度和纯度较高的色彩,一样会使客户产生不适的躁动感。


▷ Kolmio+LIM设计时用的是暖色中的浅色调,基于人类的自然肤色和指甲色调而设计。以米白色为空间的大背景,使色彩更具女性化,让人的心理感受到温馨舒适,逐步让人转为依赖的心态,最终客户能对美甲店产生归属感。
▷ 除了米白色外,三种不同的色彩合力将这里构成了一个清新、自然、浪漫的世界。以原木色调为主色,搭配白色、果绿、浅粉的喷漆墙,在石灰与木料的衬托下,一个清新的世界出现了。原木色的家具以略带深沉的浅灰色作软饰,点缀亚麻色的棉麻布艺及色彩纯粹的挂画,让空间更加浪漫。

▷ 设计师还根据场地提供的服务和名称(Kolmio在芬兰语中是“三角形”之义),趣味性地设计了特色鲜明的装置,而这些灵感都来自画指甲的过程。
▷ 例如奇特的锯齿墙,据设计者介绍,就是代表了光亮闪烁指甲油的反光。而锯齿墙上的三角形墙洞则负责空间划分,并为室内引入自然光。
▷ 同时,三张凳子,三面镜子以及三张美人椅,也诗意地引出了沙龙的名字。整体感觉简洁而放松,仿佛这片宁静、极小的空间已被构思成一个逃离城市喧嚣的地方。


▷ 接待区的背景墙被涂成了蓝色,与树干做成的木质座椅和木质书架相互映衬,十分和谐。

▷ 室内摆放着六张木质桌子用来做美甲,放置一旁的两把躺椅用来做足疗。

▷ 顾客要通过这个卷曲的木质墙制成的三角形门洞进入后面的美容区。

▷ 眼睫毛美化区域被闪烁的金色窗帘单独分隔开,这个区域墙壁是淡淡的粉色,墙壁挂着几面镜子。镜子和搁架都采用最简约的产品,简约之中散发出一种精致感。

▷ 几处带色彩的墙面也切合这一主题,采用柔和的墙壁颜色。这是一个基于环境和行为而产生的设计。线性网格的木质地板也体现了个性的精细艺术。整体舒适放松的环境则为前来美甲的顾客营造了一个逃离喧嚣都市的宁静空间。



楼层平面图

楼层平面图
J byron-h设计的洛杉矶极简美甲店
▷ 美国建筑师J byron-h在洛杉矶设计了一间整洁的美甲沙龙,室内整体为工业风格,并用充满时尚感的蓝色作为点缀。

▷ J byron-h与品牌机构Weekday Studio联手创建了Color Camp,这是一间位于洛杉矶Fairfax 区的简约美甲沙龙。
▷ 这间沙龙位于Beverly大道,周围有Hip咖啡店、街头服装店,和Pugh + Scarpa’s Cherokee复式公寓。

▷ 675平方英尺(约62.7平方米)的美甲沙龙的室内装修时拒绝采用防丙烯酸,只使用光泽剂和日式“超凝胶”,这种材质虽然看上去厚重,但却更灵活。

▷ 整个空间以亮白色为主色调,其中点缀有热带植物,并且还使用了混凝土地板。在美甲店的后方是一面粉红色斜墙,来这里的客人常常在这里拍照并PO上Instagram。
▷ 对于这个设计,J byron-h的目的是“唤起一种有趣的探索感,并且尽量避免当代美甲店常常会给人带来杂乱无章的感受。”


▷ 空间布置得就像一间咖啡馆,上面有一个通高的柜台,形成了一个美甲台,顾客能够从后面展示颜色中选择自己喜欢的美甲款式。
▷ 建筑师说:“这个空间的主要组织元素是修指甲台:一个细长的桌子,人们能够在这里自由地或站或坐。”

▷ 四张桌子由黑色钢制成,它们位于吧台对面并突出于墙。
▷ “这个项目看似简单却也充满挑战,我们需要在这么一个狭窄的空间里设计出宽敞的感觉,并且保存美甲沙龙的原有功能。”J byron - h说。

▷ 深蓝色的椅子和吧台的凳子是建筑师与当地家具设计师Chris Earl合作设计。其他如天蓝色和淡紫色等柔和色调,则成为简约空间中的一大亮点。


▷ 门把手、挂绳灯、浴室水龙头和肥皂分配器等黑色固定装置也保持了整体的室内风格。



来源: 设计腕儿、专筑网、 www.dezeen.com 等综合编辑