
初次装修老气精装房,
她将日式、北欧、美式、Mid-Century Modern,
甚至民国的老调调集合在家里,
并用不同颜色的墙漆和家居配饰为家减龄,
专属打造属于“我”的风格之家!

小夫妻拥有人生中的第一套梦想中复式house,虽然是看起来是年纪偏大的精装风:红棕色地板、老气的楼梯和厨卫装修、沉闷的整体色调……但是,喜欢折腾的年轻人总有办法将家住成自己的模样!
Q & A
宅Sir:对于家的装饰和装修,最不能缺少的是什么?
屋主:一种专属于主人的感觉。
宅Sir:装修时最大的心思花在了哪里?
屋主:我最在意的是如何调和精装房的深棕色地板、木门、柜子等老气的感觉,所以每一个房间我都希望通过墙色、家具、配饰来提亮整个空间。
宅Sir:原木的元素最吸引你的地方是什么?
屋主:温暖的感觉,不同种类的木头有不一样的颜色和质感,随着使用时间的增长他们的色泽也会变化,这种能够见证时间流逝的物件很迷人。
宅Sir:你最喜欢家里的哪一个空间?为什么?
屋主:主卧,精心布置的主卧背景墙让我每天都矫情的觉得自己置身于星辰大海。
认识她

在家屋主张兮兮和徐小贱
张兮兮,坐标南京, 一枚高校辅导员,工作学习之余喜欢和家属徐小贱一起旅行、看展、逛吃,有了自己的小家以后会分出一些时间来尽情折腾,喜欢一切有设计感的小物件以及一切与美好生活有关的事。
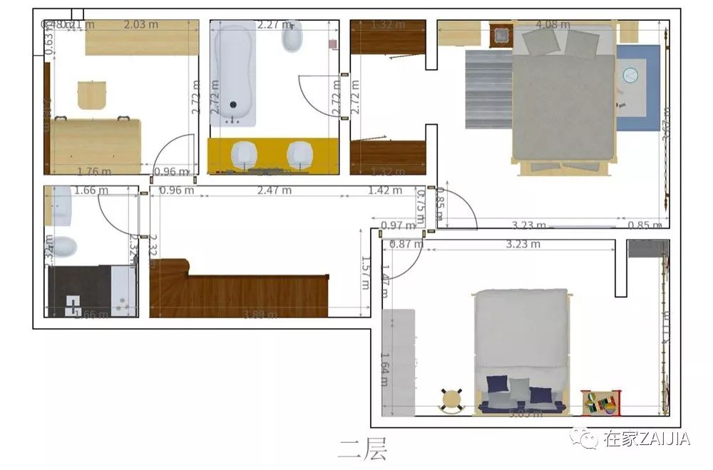
房屋信息

户型:复式四室两厅三卫一厨
面积:实际面积148㎡(一层和二层均:74㎡)
装修时间/花费:封阳台用了三个月,花费2w左右;软装大概用了两个月,不算电器和之后添置的各种家居饰品之外共花费12w。
装修灵感:既喜欢北欧性冷淡风也喜欢日系小清新调,既喜欢工业风的水泥水管也喜欢温暖的感觉,我觉得没有必要非要给一个家定义一种风格,日式、北欧、美式、Mid-Century Modern甚至民国的老调调都被集合在我家里。
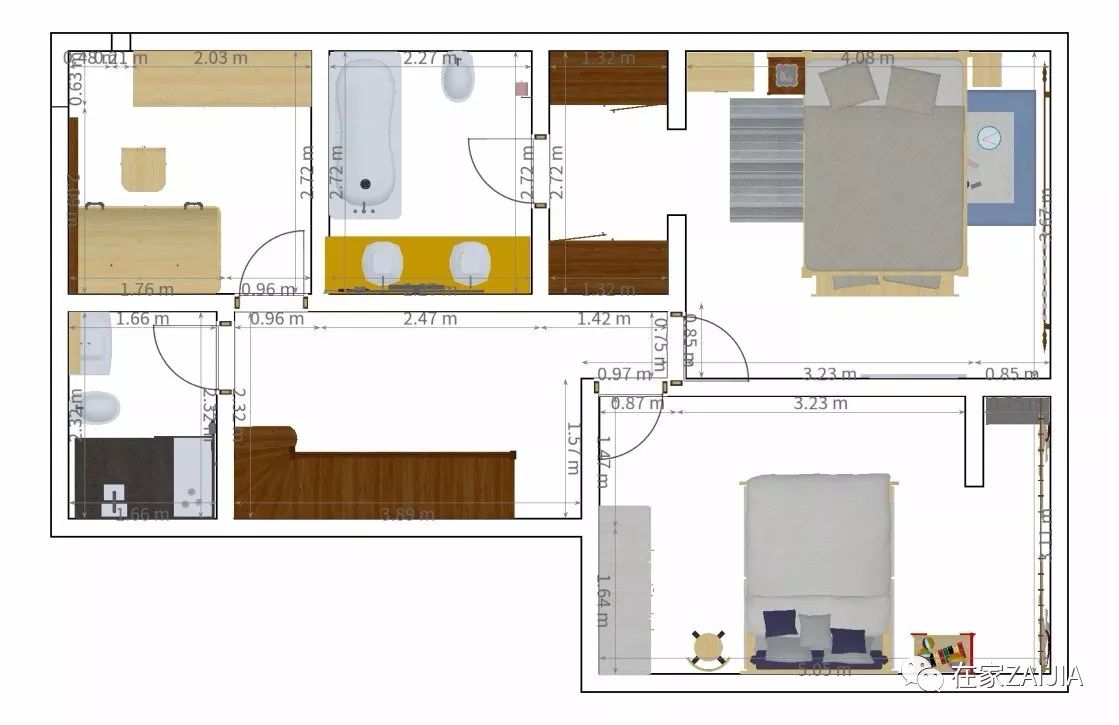
一层 面积74㎡

一楼户型图
改造一:利用入户走廊改玄关+黑板墙
改造二:客厅黄色乳胶漆墙面刷灰色 用软装为老气精装风减龄
改造三:楼梯墙面DIY软木墙 记录每一个有意义的时刻
玄关 入户走廊变玄关

黑板漆:福乐阁黑板漆(色号2508)
家的玄关其实就是一个小小的走廊。为了让人一进门就能感受到整个家的风格,我们把走廊的筒灯改成了轴年的木质吊灯,把鞋柜的金属拉手换成了植鞣皮带拉手。
在侧面我们刷了一面墨绿色的黑板墙,最近刚刚完成了圣诞黑板画,一进门就能够感受到暖暖的节日气氛!

玄关处开发商统一做了鞋柜,平时放两个人常穿的鞋子基本够用,鞋柜里我们在淘宝上购买了收纳隔层,收纳数量加倍。

黑板墙下面的六角砖是地板贴,效果非常逼真,主要是为了遮住之前搬家具的时候不小心划伤的地板,同时也装饰了地面。
客厅:改墙色+风格混搭为老气精装风减龄

墙漆:立邦漆,色号:淡灰
客厅和餐厅约26㎡,我将客厅原来黄色的乳胶漆墙面刷成灰色。
在这个长方形的大空间里我融合了日式茶几和餐桌椅、老上海风格的餐边柜、北欧风格的沙发、美式的挂钟、Mid-century modern的中古柜、工业风的落地灯以及民国风情的老南京地图等等。这些看起来风格不搭边的单品混搭起来其实别有一番韵味。

茶几:熹山工房 鹅卵石咖啡桌(樱桃木)
地毯:Zarahome
挂钟:南京爱室丽家居实体店(品牌Uttermost)
客厅的布置中要是通过各种配饰来提亮空间,比如用星星吊灯、星星窗帘、粉色系沙发背景海报、黄铜配饰以及绿植等加以点缀,希望能够在视觉上减轻深红棕色地板给人的压抑感和老气感。

吊灯:Nest小岛 五角星木制星星吊灯
沙发背景墙海报:Freya的北欧海报
一般两个人在家的时候喜欢窝在沙发上或者坐在地上看看电影看书。沙发是宜家的兰德克纳系列,黑色皮质沙发很有质感也很好打理。

沙发边柜:十二时慢 书边柜(黑胡桃木)

边几:秘密的糖果metor 夏克式樱桃圆桌(樱桃木)
落地灯:KC灯具

绿色的单人扶手椅购自二黑木作的乐森扶手椅,购买家具我一般秉承的原则是不喜欢一站式购物,每一件家具家饰都是精挑细选!

电视柜:致家家居Zii 空白电视柜(樱桃木)
中古柜:MUE北欧中古家具
梯子:山河即木 半梯(黑胡桃木)
吊灯:Nest小岛 五角星木制星星吊灯
沙发的对面,客厅的电视柜选择了樱桃木和黄铜的绝美组合,黄铜格栅能够把机顶盒隐藏起来,同时也不影响接收信号。另外我们还把电视背景墙上方不太常用的射灯中的其中一个改成了星星黄铜吊灯作为挂件装饰。

画轴:coznap
窗帘: NITORI实体店
这个来自1960s有着典型拉手和造型的蜜糖色四斗柜,收纳力很赞,各种杂物都能够放在里面。柜子上面用黄铜制品来点缀,然后搭配了Mid-century modern海报也和这个小景非常契合。

左右滑动查看更多
客厅的圣诞装饰角,喜欢欢乐的节日气氛。
餐厅最具烟火气的场所

吊灯:王波波的幸福生活 日本代购复古玻璃吊灯
和客厅相通的餐厅,圣诞节前夕,已经被我布置出满满的节日气氛!

餐厅一般只有我们两个人用餐。对于我们而言,餐厅是最具烟火气的地方,每天面对面坐在餐桌前,一张桌子,两个人,两双碗筷,他说举案齐眉,我说居安思危。

平日的餐厅
餐桌椅:NITORI实体店(松木)
餐厅的餐桌椅是松木的,粗糙的纹理看起来很沧桑,特别好打理,不怕水不怕油,是所有实木家具里最不娇贵的一个。
餐桌旁边靠墙的位置放了一条长案和两个柜子,长案上的玻璃柜用来展示我收藏的餐具和各国的珍藏版可乐罐,多出来的空间用来拆快递特别顺手,选择长案而不是柜子是因为长案下面能够叠放一些小凳子,人多的时候能够拿出来使用。

长案:木墨MUMO 原木细长桌(红橡木)
玻璃柜:木墨MUMO 实木组合玻璃储物柜(黑胡桃+樱桃木)
最里面的海棠花三层玻璃柜(樱桃木)收纳效果超棒,购于失物招领(当时只有上海地区能够做海棠花玻璃的款式,北京地区是没有的)。通常一层用来放零食和常温储存的饮料,一层用来放桌布餐垫等用品,还有一层放了药箱和一些常用的小东西。
7㎡的厨房

厨房大概7㎡,平时我们每天早饭都会自己做,有空的时候会一起研究研究学学新菜,做饭的频率还算蛮高的。
在厨房开发商做了许许多多的橱柜,所以完全不担心收纳的问题,我的习惯是在下面的柜子里放锅具、餐具等比较重或者容易摔坏的东西,而厨房纸巾、清洁用品等等我都会放在上面的吊柜里。

厨房里最好用的是这个山崎实业的收纳架,我平时习惯用厨房纸巾擦油污,这个架子取用非常方便,上面还能够放保鲜膜、保鲜袋、擀面杖等物品。山崎实业的其他厨房收纳也都很好用,不是那种颜值高高但是实用性很差的东西,淘宝上有很多代购能够购买。
次卧

床:原始原素北欧实木高箱体床(白橡木)
床品:虾米的故事
挂毯:满月君 鹿之梦系类
装饰画:巴黎购回
衣架:初木旗舰店 实木挂衣架(榉木)
次卧大概10㎡,一般父母来住会用这个房间,床品和窗帘都选择了比较清新的绿色。因为这个房间使用频率不是很高,所以选择了能够储物的液压箱体床,里面存放一些备用的被褥床品等。

床头几:静研 北欧实木边几床头几(红橡木)
床头椅:原点生活家具小铺(已下架)
不喜欢在床的两侧循规蹈矩的放两个床头柜,但又必须满足能放一些常用物品的功能,所以一侧放了床边几,另一侧放了一把椅子,形成一种不对称的感觉,人多的时候还能够拎到客厅,特别实用。
通向二楼的楼梯

软木墙这边刚好是一进门能第一眼看到的地方,所以我们在上面钉的都是每个具有特殊意义的日子拍的照片,以及世界各地寄回来的明信片。

软木、胶水:Corkhouse 葡萄牙原装进口大颗粒花纹软木板
木质图钉:同源杰
软木板柔软的质感特别吸引我,虽然一直觉得楼梯旁边这里最合适,但这个地方是个四条边都不规则的形状,我们找遍了淘宝也没能找到本地能提供安装服务的厂商,于是决定自己动手。
软木板易裂,裁剪和粘贴的过程都特别有挑战,我和徐先生从下午一直弄到凌晨一点,虽然有些边缝没能处理的很完美,但是整体效果还是很满意,超有成就感。(软木板裁剪需要自备全新的美工刀,上墙需要用软毛滚筒刷胶,在墙上和软木板背面都要刷,等白色的胶水变透明就能够粘贴了)。
二层面积74㎡

二层户型图
改造一:主卧刷蓝墙质感满满
改造二:用粉蓝墙漆打造儿童房,即是客卧也是衣物收纳间
改造二:书房衣帽间二合一
主卧:刷蓝一面墙睡在星辰大海里

床:安森奈斯Ethnicraft 马德拉柚木床(柚木)
床头木框:熹山工房 格格柜(榉木)
主卧包含了一个小衣帽间和主卫,总面积大概26㎡,一直对蓝色情有独钟,所以背景墙选择了深蓝色,卧室有一面大窗采光很好,所以并不觉得暗,另外三面墙我都保存了本来的淡黄色,只刷一面深色背景墙反而显得非常有质感。

粉色床品:野兽派 月夜下的舞曲
台灯:野兽派 金色大理石台灯
墙漆是立邦的乳胶漆,色号叫做蝶恋花,刷两遍干了以后是宝蓝色,刷三遍或四遍才能达到暗暗的深蓝的效果。

床头是一个半空心的箱体,能够放置一些香薰或者摆件,床架外观上有点类似榻榻米床,本身的架构相对比较矮,需要比较厚的床垫。

左右滑动查看更多