地下连续墙施工 方法
1 施工工艺
其工艺流程如下图:

2 导墙施工
2.1 导墙设计概况
导墙是控制地下连续墙各项指标的基准,它起着支护槽口土体,承受地面荷载和稳定泥浆液面的功能。对于地质情况比较好的地方,能够直接施作导墙,对于松散层可通过地表注浆进行地基加固及防渗堵漏。
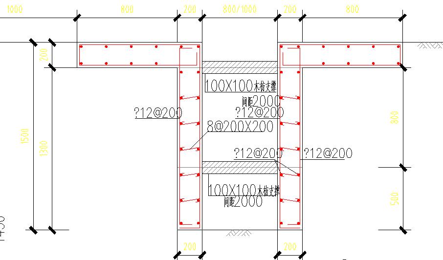
导墙翼面置于上部的杂填土上,为保证两侧导墙能紧贴地面并在地下连续墙施工前和施工中不产生内挤,吕厝站1号线、2号线导墙翼面宽度设计为0.8m、墙厚0.2m、导墙深度1.3m,导墙顶面高出地面0.1m,防止周围的散水流入槽段内,污染泥浆。导墙的净距为地下连续墙设计厚度加50mm的施工余量。导墙顶面做成水平,斟酌地面坡度影响,在适当位置做成10~15厘米台阶。模板拆除后,沿其纵向每隔2米加设上下两道100*100厘米方木做内支撑,将两片导墙支撑起来。导墙分段施工,分段长度根据模板长度和规范要求,一般控制在30~50m。在平面上导墙施工接头与地下连续墙接头错开。导墙主筋用Ф12螺纹钢,钢筋间距按200mm排列,水平钢筋置于内侧采用φ8圆钢,钢筋间距按200mm排列
根据施工区域地质情况,导墙做成“┓┏”形现浇钢筋混凝土结构,断面如下图所示;

导墙断面图
在导墙各转角处需向外延伸,满足成槽机的最小抓斗要求,转角处导墙需沿轴线外放不小于0.3m。
2.2 导墙沟槽开挖
用全站仪放出地墙轴线,并放出导墙位置(连续墙轴线向基坑外侧外放100mm),导墙开挖采用小型挖掘机开挖,人工配合清底。基底夯实后,铺设7厘米厚1:3水泥沙浆,混凝土浇筑采用木模板及木支撑,插入式振捣器振捣。在导墙的混凝土达到设计强度前,禁止任何重型机械和运输设备在其旁边通过。导墙施工缝与地下墙接缝错开。其施工顺序如下:

2.3 导墙的钢筋混凝土施工
(1)导墙沟槽开挖后立即将导墙中心线引至沟槽中,控制模板施工。
(2)导墙主筋用Ф12螺纹钢,钢筋间距按150mm排列,水平钢筋置于内侧采用φ8圆钢,钢筋间距按200mm排列。
(3)导墙模板采用木模板,沿纵向设4道钢管支撑加固,间距30cm,沿高度方向每1m设一道钢管支撑。模板加固坚固,严防跑模,并保证轴线和净空的准确,沿中线方向左右偏差不大于5mm。
(4)混凝土浇注时两边对称均匀布料,50cm振捣一次,以表面泛浆,混凝土面不下沉为准。每次浇注留试件一组。
(5)混凝土浇注完2~3d后拆模,接头凿毛,苫盖草帘,洒水养生不少于7d。
2.4 导墙施工的技术要求
(1)内墙面与地墙纵轴线平行度误差为±10mm。
(2)内外导墙间距误差为±10mm。
(3)导墙内墙面垂直度误差为5‰。
(4)导墙内墙面平整度为3mm。
(5)导墙顶面平整度为5mm。
3 泥浆制备与管理
泥浆主要是在地墙挖槽过程中起护壁功能,泥浆护壁技术是地下连续墙工程基础技术之一,其质量好坏直接影响到地墙的质量与安全。
3.1 泥浆配合比
根据地质条件,泥浆采用膨润土泥浆,针对地质的透水性及稳定情况,泥浆配合比如下:(每立方米泥浆材料用量Kg)
膨润土:70
纯碱:1.8
水:1000
CMC:0.8
上述配合比在施工中根据试验槽段及实际情况再适当调整。
制备泥浆的性能指标如下:

3.2 泥浆池设计
泥浆池容量按下列方法确定:
吕厝站1号线
(1) 单幅槽段需浆量V0:
V0 =槽宽×槽厚×槽深
V0 =6×0.8×30=144m3 (槽深取平均值约30m)
(2) 新浆贮备量V1:
V1≈V0≈144m3
(3) 泥浆循环需要量V2:
V2=V0×1.5=144×1.5=216m3
(4)灌注混凝土时的废浆量V3:
V3=V1×10%=144×10%=14.4m3
(5)泥浆池总容量V:
V= (V1+V2+V3 )×1.1=(144+216+14.4)×1.1=374.4m3
(6)合计泥浆池总容量:374.4×2.5≈936m3
泥浆池根据成槽施工和泥浆循环与再生的需要,结合现场实际情况以及工期要求分期设置3个360m3的泥浆池。每个泥浆池按新浆、循环、废浆池组合分格设置或单独设置。泥浆池长为30米,宽为6米,深为2.5米(露出地面0.5米)。泥浆池底板采用厚100mm,C20混凝土;池体采用厚度为240mm的砖砌体,砂浆抹面。在造浆池上设置泥浆搅拌机等配套设施。
吕厝站2号线
(1) 单幅槽段需浆量V0:
V0 =槽宽×槽厚×槽深
V0 =6×1×34=204m3 (槽深取平均值约为34 m)
(2) 新浆贮备量V1:
V1≈V0≈204m3
(3) 泥浆循环需要量V2:
V2=V0×1.5=204×1.5=306m3
(4)灌注混凝土时的废浆量V3:
V3=V1×10%=306×10%=30.6m3
(5)泥浆池总容量V:
V= (V1+V2+V3 )×1.1=(204+306+30.6)×1.1=594.66m3
(6)合计泥浆池总容量:594.66×2.5≈1486.65m3
泥浆池根据成槽施工和泥浆循环与再生的需要,结合现场实际情况以及工期要求分期设置4个375m3的泥浆池。每个泥浆池按新浆、循环、废浆池组合分格设置或单独设置。泥浆池长为30米,宽为5米,深为2.5米(露出地面0.5米)。泥浆池底板采用厚100mm,C20混凝土;池体采用厚度为240mm的砖砌体,砂浆抹面。在造浆池上设置泥浆搅拌机等配套设施。
3.3 泥浆制备
泥浆搅拌采用2台2L-400型高速回转式搅拌机。制浆顺序为:

具体配制细节:先配制CMC溶液静置5小时,按配合比在搅拌筒内加水,加膨润土,搅拌3分钟后,再加入CMC溶液。搅拌10分钟,再加入纯碱,搅拌均匀后,放入储浆池内,待24小时后,膨润土颗粒充分水化膨胀,即可泵入循环池,以备使用。
3.4 泥浆循环
(1)在挖槽过程中,泥浆由循环池注入开挖槽段,边开挖边注入,保持泥浆液面距离导墙面0.2米左右,并高于地下水位1米以上。
(2)入岩和清槽过程中,采用泵吸反循环,泥浆由循环池泵入槽内,槽内泥浆抽到沉淀池,以物理处理后,返回循环池。
(3)水下混凝土灌注过程中,上部泥浆返回沉淀池,而混凝土顶面以上4米内的泥浆排到废浆池,原则上废弃不用。
3.5 泥浆质量管理
(1)泥浆制作所用原料符合技术性能要求,制备时符合制备的配合比。
(2)泥浆制作中每班进行二次质量指标检测,新拌泥浆应存放24小时后方可使用,补充泥浆时须不断用泥浆泵搅拌。
(3)混凝土置换出的泥浆,应进行净化调整到需要的指标,与新鲜泥浆混合循环使用,不可调净的泥浆排放到废浆池,用泥浆罐车运输出场。泥浆调整、再生及废弃标准见下表:

注:表内数字为参考数,应由开挖后的土质情况而定。
(4) 泥浆检测频率附表:

4成槽施工
地下连续墙成槽(尤其是入岩部分)是控制工期的要害,其主要内容为成槽机械的选择,成槽工艺控制及预防槽壁坍塌的措施。
4.1 成槽机械的选择
根据车站区域的地质情况,在强风化地层以上各层,采用2台液压抓斗成槽,抓斗最大张开幅度2.8m,膨润土泥浆护壁,成槽过程中运用成槽机上配备的自动纠偏系统确保槽壁垂直度,并配以自卸汽车运至临时渣土堆场,经排水后再转运出场;在嵌岩槽段,抓斗抓到强风化岩面后,先以GPS-15型钻机配牙轮钻头钻孔入岩,再以GC-800型和GC-1000型冲击钻,破碎孔间“岩墙”,扫孔成槽。

4.2 成槽工艺
造孔成槽是地下连续墙施工中的一道要害工序。根据地质资料和设计要求,结合我公司的告捷施工经验及现成情况,选用冲机、钻机及导板抓斗造墙机实施造孔。具体工艺如下:
(1)在成槽开始前,在导墙上定位出每一斗抓斗的中心位置,并放上标志物,以确保每次抓斗下放位置一致,防止抓斗左右倾斜。成槽机就位使抓斗平行于导墙,抓斗的中心线与导墙的中心线重合。挖土过程中,抓斗中心每次对准放在导墙上的孔位标志物,保证挖土位置准确。
(2)连续墙施工采用跳槽法,根据槽段长度与成槽机的开口宽度,确定出首开幅和闭合幅,保证成槽机切土时两侧邻界条件的均衡性,以确保槽壁垂直,部分槽段采取两钻一抓。成槽后以超声波检测仪检查成槽质量。
(3)单元槽段成槽时采用“两钻一抓”开挖,即先挖槽段两端的孔,后挖两个孔之间留下未被挖掘过的隔墙。因为孔间隔墙的长度小于抓斗开斗长度,抓斗能套住隔墙挖掘,同样能使抓斗吃力均衡,有效地纠偏,保证成槽垂直度。待单孔和孔间隔墙都挖到设计深度后,再沿槽长方向套挖几斗,这样可将因抓斗成槽的垂直度各不相同而形成的凹凸面修理平整,保证槽段横向有良好的直线性。
在转角处部分槽段因一斗无法完全挖尽时或一斗能挖尽但无法保证抓斗两侧受力均匀时,根据现场实际情况在抓斗的一侧下放特制钢支架来平衡另一侧的阻力,防止抓斗因受力不匀导致槽壁左右倾斜。
(4)成槽开挖时抓斗闭斗下放,开挖时再张开,每斗进尺深度控制在0.3m左右,上、下抓斗时缓慢进行,避免形成涡流冲刷槽壁,引起坍方,同时在槽孔混凝土未灌注之前重型机械严禁在槽孔附近行走。在挖槽中通过成槽机上的垂直度检测仪表显示的成槽垂直度情况,及时调整抓斗的垂直度,确保垂直度≤1/300。
4.2.1 土层成槽
液压抓斗的冲击力和闭合力足以抓起强风化岩以上各层,在成槽过程中,严格控制抓斗的垂直度及平面位置,尤其是开槽阶段。仔细观察监测系统,X,Y轴任一方向偏差超过允许值时,立即进行纠偏。抓斗贴临基坑侧导墙入槽,机械操作要平稳。并及时补入泥浆,维持导墙中泥浆液面稳定。
4.2.2 岩层成槽
在嵌岩槽段,抓斗到岩面即停,并使槽底基本持平。钻孔采用GPS-15型钻机,配以牙轮钻头,以钻铤加压钻进,采用泵吸反循环出碴,岩屑随泥浆直接排到振动筛和旋流器处理。在导墙上标出各钻孔位置,孔距为1.2米,在连续墙转角部位,向外多钻半个孔位,以保证连续墙完全性。钻孔完毕后,即以GC-800
(1号线)和GC-1000(2号线) 冲击钻,配以特制的方钻,将剩余“岩墙”破碎。破碎时,以每两钻孔位中点作为中心下钻,以免偏锤。冲击过程中控制冲程在1.5米以内,并注意防止打空锤和放绳过多,减少对槽壁扰动。扫孔后再辅以液压抓斗清除岩屑。
4.2.3成槽过程中注意的问题
(1)随时向槽内补充泥浆,保证槽内泥浆面不低于导墙顶面以下0.3米,以利于槽内稳定。
(2)确保槽段深度和终孔条件满足设计要求,并且槽底大致平整。
(3)经常检查槽孔垂直度,槽壁垂直度偏差<1%。操作工操作时适时处理即可;冲机钻机则需每钻进1~2米用直尺检查一次垂直度。具体操作是在两边导墙顶各打一中线,测斜时把钻头提升至孔口,缓缓放下钻头至孔底,通过用直尺测量钢缆在孔口处偏离槽孔中心的距离来计算孔底的偏距和偏斜率。深度检控采用测锤量测。
(4)抓斗抓槽过程中遇到岩石层或坚硬地层时,配合冲机钻机联合作业。
(5)当出现槽壁坍塌迹象时,如漏浆、出土量超过设计断面量、导墙及作业面沉降,泥浆随同气泡向地面溢出、挖槽机在升降中有阻力等,应将挖槽机提出地面,然后用粘土回填,待槽壁稳定后重新进行挖槽。
(6)加强观测,若发生异常情况,要及时妥善处理并通知设计、监理和业主。
4.3 防止槽壁坍塌措施
成槽过程中,软土层和厚砂层易产生坍塌,针对此地质条件,制定以下措施:
(1)减轻地表荷载:槽壁附近堆载不超过20Kpa,起吊设备及载重汽车的轮缘距离槽壁不小于3.5米。
(2)控制机械操作:成槽机械操作要平稳,不能猛起猛落,防止槽内形成负压区,产生槽坍。
(3)强化泥浆工艺:采用优质膨润土制备泥浆,并配以CMC增粘剂形成致密而有韧性的泥浆止水护壁,并以重晶石适当提高泥浆比重,保持好槽内泥浆水头高度,并高于地下水位1米以上。
(4)缩短裸槽时间:抓好工序间的衔接,使成槽至浇灌完混凝土时间控制在24小时以内。
(5)对于“Z”、“L”型槽段易塌的阳角部位,采用预先注浆处理。
4.4 塌槽的处理措施
在施工中,一旦出现塌槽后,要及时填入粘土,用抓斗在回填过程中压实,并在槽内和槽外(离槽壁1m处)进行注浆处理,待密实后再进行挖槽。
4.5异型地下连续墙施工要点
对于围护结构异型连续墙 “L”型槽段和 “Z”型槽段应严格控制异型连续墙施工质量是主体围护结构施工的要害之一,具体施工要点如下:
(1)抓斗安装后,应检查抓斗本体悬吊后的垂直性,禁止使用不垂直的导板抓斗挖槽施工。检查仪表是否正常,液压系统是否渗漏等。
(2)挖槽机就位:挖槽机停靠在异型导墙内侧,使抓斗自然平行贴靠在基坑开挖面一侧的边线,若有旋转或和导墙间出现偏角,应调整抓斗偏角,使导板能平行贴靠导墙面自然入槽,不能用人力推入槽中挖土。
(3)必须慢降、慢升。装满土的抓斗提升到导墙顶后应将泥浆沥去,防止泥浆污染场地。
(4)挖槽时,应及时拦截施工过程中发现的通至槽内的地下水流,应有专人负责随时加入合格泥浆,注意泥浆面必须保持高于地下水位0.5米以上,要专人监测泥浆变化情况;
(5)根据拟定的槽段施工顺序开挖。开挖时先两端后中间,使抓斗两端的阻力平衡。
(6)成槽后,应检查槽位、槽深等,合格后进行抓斗清槽。
(7)异型地连墙在成槽过程中,因其阳角土体呈两面腾空状态,易坍塌,力争快速施工完成,重型机械设备不宜靠近作业。
4.6成槽质量标准
(1)墙面垂直度应控制在1/300以内,墙面局部突出不宜大于100mm;
(2)槽深允许误差:+100mm~-200mm;
(3)槽宽允许误差:0~±10mm;
(4)槽段长度(沿轴线方向)允许偏差:0~±50mm;
(5)墙顶中心线容许偏差:≤30mm。
5清底换浆
成槽以后,先用抓斗抓起槽底余土及沉渣,再用泵举反循环吸取孔底沉渣,并用刷壁器清除已浇墙段混凝土接头处的凝胶物,在灌注混凝土前,利用导管采取泵吸反循环进行二次清底并不断置换泥浆,清槽后测定槽底以上0.2~1.0m处的泥浆比重应小于1.2,含砂率不大于8%,粘度不大于28S,槽底沉渣厚度小于100毫米。成槽作业完成后,为了把沉积在槽底的沉渣清出,需要对槽底进行清孔,以提高地下连续墙的承载力和抗渗能力,提高成墙质量。在清孔过程中,要不断向槽内泵送优质泥浆,以保持液面稳定,防止塌孔。槽内泥浆必须高于地下水位1.0m以上,并且不低于导墙顶面0.3米。
清槽后及灌注混凝土前,检查槽底沉渣厚度,检查方法通常用测绳量法,一个槽段至少有五个测点,沉渣厚度不得大于设计要求。
6 槽段接头清刷
用吊车吊住刷壁器对槽段接头混凝土壁进行上下刷动,以清除混凝土壁上的杂物。上下往复洗刷不少于10次,刷完壁后(每刷一次)及时将刷壁器上的泥皮清除干净,并检查钢丝情况,及时修补,刷壁器形式见下图:

7 钢筋笼制作与安装
钢筋笼采用整体制作、整体吊装入槽,缩短工序时间。连续墙的钢筋笼在现场整体制作。钢筋笼按设计要求加工,1号线厚度为0.68m、长度按墙长加工27-36.3m,钢筋采用的规格有Φ25、Φ20,2号线厚度为0.88m、长度按墙长加工26-41.7m,钢筋采用的规格有Φ28、Φ20,钢筋网钢筋的连接方式采用双面焊接,接头位置相互错开,焊接接头的位置、数量和焊接质量按国家现行标准GB50201-92有关规定执行,钢筋网制作完成(含预埋件安装)后由有关技术人员检验合格后绑上标签。钢筋网的制作必须符合下表规定。

7.1钢筋笼制作
(1)连续墙配筋:吕厝站1号线:主筋Φ25@150,水平筋Φ20@200,钢筋主筋保护层迎土侧为70mm,基坑侧为50mm。吕厝站2号线:主筋Φ28@150,水平筋Φ20@200,钢筋主筋保护层迎土侧为70mm,基坑侧为50mm。
1号线钢筋网片大部分为长方体,宽度约为6.0m,厚度680mm,长度约27~36.3m,最大起吊重量约32.4t,最大起吊高度为38.0米。
2号线钢筋网片大部分为长方体,宽度约为6.0m,厚度880mm,长度约26~41.7m,最大起吊重量约37.2t,最大起吊高度为42.5米。
(2)为了保证钢筋笼的整体性和刚度,钢筋网片上焊接3-4道Φ25竖向桁架筋和8道Φ22水平桁架筋,网片两侧设Φ20X剪力筋,钢筋笼整体拼装,整幅吊下,钢筋接头采用可靠的机械连接或焊接接头,在同一断面上焊接接头不超过50%,接头的错开间距不小于35d或1米,(d为钢筋直径);为保证槽壁稳定采用钢筋套头进行连接,连接速度快,且质量有保证;
(2)现场设置钢筋笼加工平台,平台具有足够的刚度和稳定性,并保持水平。具体位置见总体位置平面图:
(3)钢筋加工符合设计图纸和施工规范要求,钢筋加工按以下顺序:先铺设水平横筋,再铺设竖向纵筋,并焊接坚固,焊接底层保护层钢板垫块,然后焊接中间桁架,再焊接上层纵向筋中间联结筋和面层横向筋,然后焊接锁边筋,吊筋,最后焊接剪力筋、预埋件(同时焊接中间预埋件定位水平筋)及保护层钢板垫块。为保证钢筋网的保护层厚度符合要求(允许偏差±20mm),按设计要求,在钢筋网外侧面焊上足够数量的定位件。
(4)钢筋笼制作过程中,预埋件、测量元件位置要准确,并留出导管位置(对影响导管下放的预埋筋、接驳器等适当挪动位置),钢筋保护层定位块用5mm钢板焊接。
(5)由于接驳器及预埋筋位置要求精度高,在钢筋笼制作过程中,以钢筋顶面位置作为基点,控制预埋件位置。在接驳筋后焊一道水平筋,以便固定接驳筋,水平筋与主筋间通过短筋连接。接驳器或预埋筋处钢筋笼的水平筋及中间加设的固定水平筋按3%坡度设置,以确保接驳器及预埋筋的预埋精度。
(7)钢筋笼制作偏差符合以下规定:
a 主筋间距误差:±10mm。
b 水平筋间距误差:±20mm。
c 两排受力筋间距误差:-10mm。
d 钢筋笼长度误差:±50mm。
e 钢筋笼保护层误差:+5mm。
f 钢筋笼水平长度误差:±20mm。
7.2钢筋笼吊装
7.2.1 吊装方法简介
钢筋笼的起吊是地下连续墙施工过程中重要的一个环节,故在起吊中,所有参与起吊的人员都应按规定作业,现场作业流程要衔接及时。
为了不使钢筋笼在起吊时产生很大的弯曲变形,在施工时由一台50t履带吊配合一台100t履带吊整体一次吊装,采用六点吊装,吊点位置设置在桁架筋上,事先进行检算,其中一钩吊住顶部,一钩吊住中间部位吊起,先使钢筋笼离开地面一定尺寸,然后主吊机升高,辅吊机配合使钢筋笼底端不接触或冲撞地面,直至主吊机将钢筋笼垂直吊起,这时由主吊机吊着钢筋笼运输、入槽、就位,用槽钢横担于导墙上将钢筋笼吊住,稳定在设计标高位置,之后将钢筋笼与导墙顶的予埋件焊连,防止其上浮。钢筋笼吊装如下图所示。
如果钢筋笼不能顺利插入槽内,重新吊起,查明原因加以解决,一般在修槽之后再吊放,不得将钢筋笼做自由坠落状强行插入基槽。
钢筋笼吊装示意图

(1)钢筋笼平吊
开始起吊时主、副吊机均立于平行钢筋笼长度方向的两端,由吊装指挥员负责发布起吊命令,两台吊机同时缓缓起吊,慢慢的同时抬起钢筋笼,起吊高度控制在不大于焊接平台500mm,平吊作业完成。
(2)钢筋笼转体
在钢筋笼平吊作业完成以后,两吊机按照指挥员的指挥下慢慢的转体,先离开焊接工作平台,此时主副吊机缓缓的转动,当钢筋笼离开焊接平台后,主吊机缓缓的提升,副吊机慢慢的下降,对钢筋笼进行竖向转体,即将钢筋笼从两台吊机平吊转换成一台主吊将钢筋笼竖直吊起。在此过程中主吊将钢筋笼慢慢向上提起,此时主吊机扁担下的四个钢丝绳吊索由于钢筋笼的滑移而慢慢的滑向一边。主吊的吊装力量将随之慢慢增加至钢筋笼的全部重量(包括吊具的重量),副吊机的吊力将随之慢慢减小直至钢丝绳松开并继续放长,随时根据情况将副吊机的吊索与副扁担梁进行分离。在本阶段中指挥人员必须将两台吊机的动作协调一致。钢筋笼吊垂直后,副吊机不再参与吊放,主吊将钢筋笼吊至连续墙槽段旁。
在吊离焊接平台的水平移动过程中,钢筋笼在起吊及行走过程中应小心,慢速平稳操作同时在钢筋笼下端系上拽引绳以人力操纵,防止钢筋笼抖动而造成槽壁坍塌以及钢筋笼自身产生不可恢复的变形。
(3)钢筋笼下槽及位置标高控制
钢筋笼在槽口按设计要求位置对正就位后缓慢下放入槽,严禁放空档冲放,遇障碍物不能下放时,应重新吊起,待查明原因并采取措施后再吊入。
钢筋笼下放到位后,用特制的钢扁担搁置在导墙上,并通过控制钢筋笼顶标高来确保钢筋预埋件的位置准确。地下连续墙顶标高误差为±3cm,在钢筋笼吊放前要再次复核导墙上的4个支点的标高,根据实测标高值来确定安装标高线,并在钢筋笼顶部吊环上用红油漆标画出,精确计算吊筋长度,确保误差在允许范围内。
7.2.2 吊装设备选取
(1)履带式起重机的选型
钢筋笼采用整体吊装,吊装钢筋笼选用一台主吊机和一台副吊机两台起重设备起吊,先水平吊起离开地面,再缓慢、平稳使之处于垂直状态,通过主吊车移动、调整放入挖好的槽段中。本标段最大的连续墙钢筋笼尺寸为34m*6m*0.88m,重量为32.39t。根据现场条件,对照起重机性能表(见下图),特选定100t履带式吊机一台(主),50T履带式吊机一台(副)。


(2)钢丝绳与配件的选择
a、吊点吊环验算
主吊点钢筋取φ32;
主吊点,全荷载吊环钢筋验算Ag=K×G/(n×2×Rg)×sinα;
Ag:吊点钢筋(cm2);K:取1.5;G 重量(kg)=37200kg;α=90度;
n 吊点系数取4 ;Rg 钢筋取1250kg/cm2;Ag=7.89cm2推出D=2.487cm,实际3.2cm,实际3.2cm>最小理论2.487cm;所以吊点吊环均采用φ32圆钢符合要求。
b、滑轮选择:本工程的钢筋笼吊装装备采用双车8点起吊法,由两套滑轮承担钢筋笼的全部重量,查滑轮使用表,对应选择比较接近的单门开口吊钩形滑轮。选直径320mm允许荷载为100KN,最后主吊4个滑轮能够承担400KN〉钢筋笼372KN,满足使用要求,能够使用。
c、吊装吊梁
吊装吊梁(扁担)采用300mm成品工字钢焊接制作,在钢丝绳位置设置防止移动的固定装置,扁担的形状与各部位尺寸详见下图。吊梁的长度定为吊装钢筋笼最大宽度的80%,即6.0m*0.8m,取L=4.5m,起重机的钢丝绳连接的吊点距扁担两端为全长的20%,即0.9m,即可满足最大重量钢筋笼的吊装要求。
吊重吊梁受力简图

d、钢丝绳选择:选择了直径320mm滑轮,按照滑轮适应的钢丝绳为30.5~34.0mm,查钢丝绳表得出可选择的范围,采用6*37+1,公称强度为1550Mpa,安全系数K取6。由《起重吊装常用数据手册》查得钢丝绳数据如下表:

钢丝绳在钢筋笼竖立起来时受力最大。
吊重:G=37.2t ;钢丝绳直径:32.5mm,额定[T]= 10.13t;
钢丝绳实际承重T=G/4sina=37.2/4sin90=9.3t<[T];满足要求,能够使用。
为了保证钢筋笼能顺利起吊与安放,特配备如下起吊物件:

7.2.3 吊装前质量检查
在钢筋笼制作完成后,由质检工程师进行检查,重点检查部位应包括如下几点是否达到技术交底的要求:
(1)主吊环位置处主筋与分布筋交叉处是否是双面焊接。
(2)由吊环位置起,前九道分布筋与主筋交叉位置处是否双面焊接,分布筋收口处是否满焊。
(3)指定的导管位置处不得布梅花筋、支撑筋等,应确保导管位置的空间。
(4)吊点位置处三根分布筋与主筋交叉位置处是否双面焊接,收口筋是否满焊。
(5)非吊点位置处的分布筋收口处应确保焊缝长度不低于搭接长度50%。
(6)在钢筋笼制作流程中应先行制作桁架筋,并应将桁架筋满焊于上下主筋之间。
(7)在布置主筋与分布筋时应确保间距均匀顺直。
(8)在钢筋笼起吊前应确保所有焊点已焊接,严禁钢筋笼在起吊过程中发生因缺焊、漏焊而导致钢筋脱落。
(9)在钢筋笼制作过程中应确保预埋钢板位置及副吊环标高与交底一致。
除此之外,安全员应在每次起吊前对吊具进行全面检查,确保所有吊具满足规范要求。
7.2.4 吊点位置的选择
如果吊点位置计算不准确,钢筋笼会产生较大的挠曲变形,使焊缝开裂,整体结构散架,无法起吊;并且会导致混凝土的裂纹,影响结构的耐久性,严重时会导致连续墙体断裂。因此吊点位置的确定是吊装过程的一个要害步骤。
根据弯矩平衡定律,正负弯矩相等时所受弯矩变形最小的原理,具体计算如下:

+M=-M
其中
+M=(1/2)qL12
-M=(1/8) qL22-(1/2)qL12
q为均布荷载,M为弯矩。
故:L2=2√2L1,以34.1m钢筋笼为例:2L1+3L2=34.1
计算得:L1=3.25m ,L2=9.2m

因此,选择B、C、D、E四点作为吊点,钢筋笼起吊时弯矩最小。但实际吊装过程中假如B、C中心是主吊位置,AB距离会影响吊装钢筋笼入槽精度。根据设计院提供的技术数据和实际吊装经验,应选择A、C为主吊位置,D、E为副吊位置。
7.2.5 吊车就位、安放吊具
钢筋笼经监理工程师检查合格后,吊车就位,主吊机放置在离槽段近的一侧,两吊机之间距离调整合适。
由协助人员将主、副扁担挂在相对应的主、副吊机吊钩上。待100t主吊机与50T副吊机就位后,检查就位情况,确保正确就位。就位结束后,指挥吊机将扁担缓缓落至钢筋笼面层分布筋上面,然后由协助人员将扁担上钢丝绳用卸扣与吊环连接锁紧。实物图如下:


7.2.6 起吊
经质检工程师与安全员对钢筋笼焊接质量、吊具安全性能以及钢丝绳与吊环、吊点连接情况检查合格后,方可起吊。起吊作业中,吊机所有动作由指挥长统一安排和指挥。
在指挥长的指挥下,先进行试吊,主、副吊机同时缓缓起吊,将钢筋笼平吊起身离地面约0.5m,将钢筋笼悬空稍停留段时间待稳定后,以检验焊接质量,同时,由安全员与技术员再次检查吊环、吊点处与卸扣、钢丝绳的连接是否完好,钢筋笼的是否存在变形过大的问题。
经检验无误后,即试吊安全可靠,由指挥长统一指挥主、副吊机将钢筋笼缓缓提升吊起。在吊起过程中,副吊机不需过大提升扒杆,只需将钢筋笼尾部控制在离地面1~2m的距离即可;主吊机应缓缓提升扒杆,直至钢筋笼由水平状态转换为竖直状态。然后主机升起系在钢筋笼上口的钢横担将钢筋笼吊起对准槽段,缓慢垂直落入槽内,不得高起猛落,强行放入,避免碰坏槽壁。在吊入过程中,根据在导墙上标记的下放位置严格控制位置,确保预埋件位置准确。
7.2.7 钢筋笼就位、安装
钢筋笼起吊竖直后,拆除副吊钢丝绳,由主吊移动钢筋笼至相应槽段,对正后缓缓将钢筋笼放入槽中,待放到钢丝绳下端卸扣处时,停止下放,用两至三根槽钢并排将钢筋笼担在槽孔处,确保担实不下滑后,依次拆卸吊环,继续下放钢筋笼直到设计标高。
钢筋笼入槽后,用槽钢卡住吊筋,横担于导墙上,防止钢筋笼下沉,并用四组(8根)φ50钢管分别插入锚固筋上,与灌注架焊接,防止上浮。
7.2.8 施工要点
(1)钢筋笼制作前应核对单元槽段实际宽度与成型钢筋尺寸,无差异才能上平台制作。对于闭合幅槽段,应提前复测槽段宽度,根据实际宽度调整钢筋笼宽度。
(2)钢筋笼必须严格按设计图进行焊接,保证其焊接焊缝长度、焊缝质量。
(3)钢筋焊接质量应符合设计要求,吊攀、吊点加强处须满焊,主筋与水平筋采用点焊连接,钢筋笼四周及吊点位置上下1米范围内必须100%的点焊,其余位置可采用50%的点焊,并严格控制焊接质量。
(4)钢筋笼制作后须经过三级检验,符合质量标准要求后方能起吊入槽。
(5)根据规范要求,导墙墙顶面平整度为5mm,在钢筋笼吊放前要再次复核导墙上4个支点的标高,精确计算吊筋长度,确保误差在允许范围内。
(6)在钢筋笼下放到位后,由于吊点位置与测点不完全一致,吊筋会拉长等,会影响钢筋笼的标高,为确保接驳器的标高,应立即用水准仪测量钢筋笼的笼顶标高,根据实际情况进行调整,将笼顶标高调整至设计标高。
(7)钢筋笼吊放入槽时,不允许强行冲击入槽,同时注意钢筋笼基坑面与迎土面,严禁放反。搁置点槽钢必须根据实测导墙标高焊接。
(8)对于异型钢筋笼的起吊,为避免扰度的产生,在过程中加强焊接质量的检查,避免遗漏焊点。当钢筋笼刚吊离平台后,应停止起吊,注意观察是否有异常现象发生,若有则可立即予以电焊加固。
(9)钢筋网安装完毕并自检合格后,会同监理工程师对该槽段进行隐蔽验收,合格后及时灌注水下混凝土,其间歇时间不宜超过4h。灌注水下混凝土前重新复测孔底沉渣厚度,若孔底沉渣厚度超过设计要求,则重新清孔,经检验合格后方可灌注水下混凝土。
8 接头施工
本工程地连墙槽段间连接采用工字钢板接头方式进行联接。
8.1 接头具体施工方法
(1)在加工钢筋笼时,将工字型钢接头与钢筋笼整体焊接,钢板底部为连续墙底面标高上250mm,顶部为连续墙顶面标高上300mm。工字型钢板接头与钢筋笼一起采用一台100t吊机和一台50t吊机配合吊入槽段内。
(2)接头背侧处理如下图,在接头外侧采用填筑土袋的方法,以防混凝土绕流,并给予先施工幅段的钢筋笼以足够的侧边压力防止水平位移。
(3)对相邻槽段成槽时,用冲桩锤预冲与前一段接头处可能溢出的混凝土,用特制带钢丝刷的偏心刷壁器将端头的泥砂清除干净,使附着在接缝处的土垢尽可能少,一般需要刷10次以上才能确保接头面的新老混凝土结合紧密,从而使连续墙接头部位防水效果和完全性好并便于下放钢筋笼。
9 水下混凝土灌注
根据图纸设计,地下连续墙混凝土施工时采用水下C35P10商品砼,掺减水剂和UEA膨胀剂,坍落度控制在18-22厘米。选用质量稳定、低水化热水泥,不得采用高水化热水泥,避免使用早强水泥和C3A 含量偏高的水泥。严格控制水泥用量,在保证混凝土强度的前提下,尽量降低胶凝材料(水泥、抗裂防水剂、掺和料等)的总用量和硅酸盐水泥用量,但最低胶凝材料的最低用量不应少于300Kg/m3,最高用量不得超过400Kg/m3;选用优质粉煤灰、矿渣等矿物掺合料或复合矿物掺合料;一般情况下,矿物掺和料应作为耐久混凝土的必需组分。
具体施工工序如下:
9.1 砼配合比
砼配合比的设计除满足设计强度和抗渗要求外,还要斟酌导管法在泥浆中灌注砼的施工特点(要求砼和易性好,流动度大且缓凝)和对砼强度的影响。砼强度比设计强度提高一个等级。使用普通水泥,并有一定的流动度保持率,坍落度降低至15cm的时间不宜小于1h,扩散度宜为34-38cm。砼的初凝时间应满足浇灌和接头施工工艺要求,缓凝时间不小于4-5h。砼采用商品砼,受交通和运输距离影响运输时间稍长,加减水剂,减小水灰比、增大流动度,减少离析,延缓初凝时间,防止导管堵塞,降低浇灌强度。
9.2 导管安装
根据施工槽段宽度,使用两根φ300mm钢制导管,对称进行砼浇灌,导管安装间距按设计要求。导管标准管节长度为3m,调节管节长度为1m和1.5m,管端用粗丝扣或法兰螺栓连接并以环状橡胶圈或垫密封,管接头外部要光滑,法兰式接头外设置三角肋板,防止导管上拔挂住钢筋笼。使用前,根据槽段深度,编排管节,在地面按编排的管节长度组装完成后进行水压试验,水压试验压力为0.6Mpa,水压试验合格后,做好管节编号记录,然后拆成2-3节一段备用。导管用吊车吊入槽中连接。导管底离槽底距离控制在0.4m左右。
9.3 水下混凝土灌注过程
(1)施工准备
水下混凝土灌注前应认真作好混凝土灌注前的各项准备工作,并与商品混凝土拌和站取得联系,确保混凝土及时、连续的供应混凝土。
(2)水下混凝土灌注
砼浇灌前,先检测槽底沉碴厚度,如不符合要求,利用导管进行二次清槽。二次清槽方法见下图。

二次清孔示意图

导管法混凝土灌注示意图
混凝土灌注采用吊车或提升架吊住混凝土料斗,通过混凝土料斗提升导管的方法。混凝土上料利用混凝土输送车直接送入料斗灌注,首盘采用提球法,用彩条布包封混凝土进行睹管,提升包封砼使首盘砼入管进行浇筑。计算首盘混用量,首盘灌混凝土必须保证导管埋深在1m以上。灌注过程中,导管始终埋入混凝土中2~4m。最小埋深不得小于1.5m。混凝土浇筑连续进行,混凝土面上升速度不小于2m/h,最长允许间隔时间20~30min。在灌筑过程中,每隔20min用测绳测量一次混凝土面上升高度,保证准确适时拔管。
混凝土的质量直接影响到地下连续墙的质量,施工期间除了加强与商品混凝土拌和站的联系与沟通外,高度重视进场混凝土的质量检验,重点作好每车进场混凝土的外观检查和坍落度的测试。
9.4 混凝土灌注施工技术要点
(1)地下墙混凝土浇筑尽量安排在无大风、雨的天气进行。
(2) 导管水密性要好,混凝土灌注过程中绝对不能作横向运动。不能使混凝土溢出漏斗流进沟槽内,初灌混凝土导管的埋入深度≥1m,故而漏斗的容量要满足一次浇筑高度>1m砼体积和导管长度范围砼体积的要求才行。
(3) 混凝土的供应速度≥20m3/h,中间间隔不超过30分钟,塌落度控制在18-22cm以内,缓凝时间4~6小时,首盘混凝土量严格控制,首盘浇筑后导管口埋入混凝土深度不小于2m。
(4)灌注时作好混凝土灌注记录,混凝土面每上升3~4m,在两导管外和中间取三点用测量混凝土面高度,按最低面控制导管的提升高度。
(5)灌注初始,两管同时灌注,之后轮流灌注。两侧混凝土面的高差不能大于30cm,否则调换浇入点,务必使混凝土面水平上升。灌注过程中,经常上下提动混凝土导管,以利墙体混凝土密实,导管每次升降高度控制在30cm以内。
(6)灌注中严禁混凝土等杂物跌落槽内,污染泥浆,降低泥浆性能造成塌孔,增加灌注困难。
(7)混凝土导管轻拿轻放,每次灌注前均严格检查拼装垂直度及密封情况,确保混凝土导管拼装后垂直、水密封性合格。
10 地下连续墙验收标准
基坑开挖后应进行地下连续墙验收,并符合下列规定:
(1)混凝土抗压强度和抗渗压力应符合设计要求,墙面无露筋、露石和夹泥现象;
(2)墙体结构允许偏差应符合下表的要求:

1 1 施工监测
车站监测内容及其重点,监测数量及安全判别标准,监测中有关注意事项执行设计图中的《施工监控量测图》(HF1-04-03-02-SS-JG01-037A、038A )。前期地下连续墙施工时需要埋设的测量元件及标志见下表:
