传统的中式与豪华的欧式在农村小别墅中已经屡见不鲜,但是现代的却没那么多见,今天特带来9套现代平层别墅,是你的菜吗?
第一套
别墅效果图:户型东西舒展,南北通透,有双车库、前后门、屋顶花园设计,外观不落俗套,合适农村自建。

平面布局图:2客厅、1厨房、1餐厅、3卧室、1书房、1车库、2卫。


第二套
别墅效果图:外立面采用浅色系真石漆喷涂而成,线条柔美造型动人,这样的三层现代别墅很令人心动。

平面布局图:1客厅、1厨房、1餐厅、5卧、3卫。


第三套
别墅效果图:精致的现代雅墅外墙面白、蓝、灰三色融洽碰撞,营造出一种独特的豪华感。

平面布局图:1客厅、1厨房、1餐厅、1起居室、4卧、1杂物间、1车库、3卫。


第四套
别墅效果图:在雅致的格调中,最真实的建筑外表下,能够淡化人工的造型,感受浓浓的现代风格。

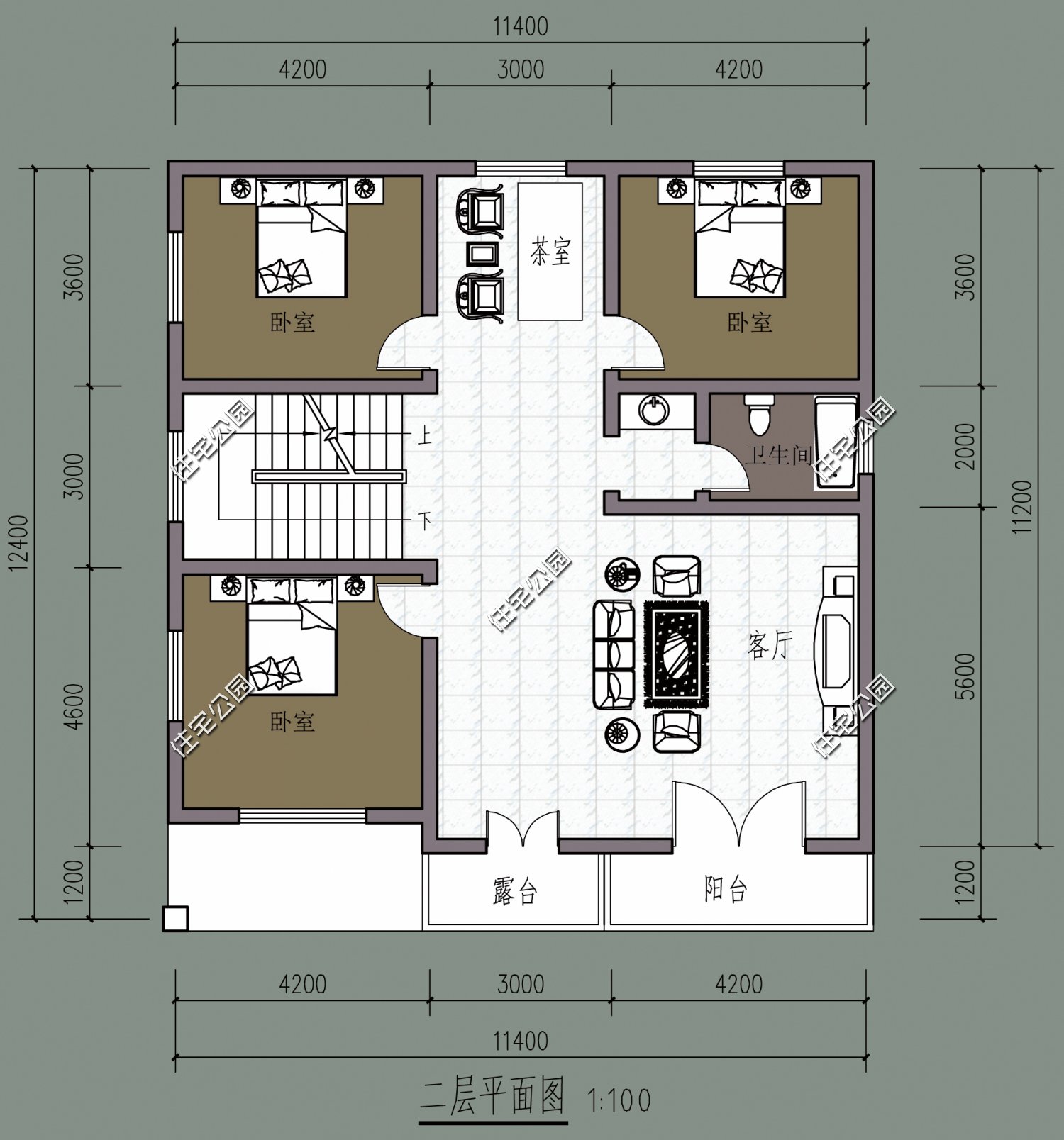
平面布局图:2客厅、1厨房、1餐厅、4卧、1茶室、1储藏室、1车库、2卫。


第五套
别墅效果图:室内外注重空间的“通透性”,落地门窗及玻璃围栏等,都是为体现这一风格的主要元素。

平面布局图:1客厅、1厨房、1餐厅、5卧、1书房、1娱乐区、3卫、1洗衣房。



第六套
别墅效果图:颇具设计的外墙、流畅简洁的线条、自然通透的大面积落地窗给别墅加分不少。

平面布局图:1客厅、1厨房、1餐厅、3卧、1偏厅、3卫、1车库。


第七套
别墅效果图:现代风格标志的平屋顶,多使用点线面设计,造型时尚,线条流畅感强,合适年轻人自建生活。

平面布局图:1客厅、1厨房、1餐厅、1起居室、8卧、1娱乐厅、4卫。



第八套
别墅效果图:四层的设计合适10人以上的大家庭,构造立体顺滑,外墙配色明亮温馨,很有简约之美的风范。

平面布局图:1客厅、1厨房、1餐厅、10卧室、1茶室、2家庭厅、7卫。




第九套
别墅效果图:清新素雅的现代住宅,营造出一种闲适富余的生活状态,凸显房主的不凡品味。

平面布局图:2客厅、1厨房、1餐厅、6卧、2书房、1储藏间、5卫。



这9套别墅,你更喜欢哪套呢?
微信公众号:住宅公园,500套别墅图纸,别墅庭院设计施工。