502 Bad Gateway


nginx
- 古诗词名句

502 Bad Gateway

502 Bad Gateway


nginx

农村人几乎每家都会有一个大面积的露台,在以前生活还不太宽裕的时候,大家都喜欢在露台上晒玉米稻子和冬天的腊物之类的东西,非常实用。所以今天小编整理了7套带露台的户型,供自建房的朋友参考 !

第一套

别墅效果图:建筑规规整整,红色坡屋顶、米黄色瓷砖外墙,再加上一个凉亭式的门厅和文化石的墙裙,简单、田园、洋气。

<html>
<head><title>502BadGateway</title></head>
<body>
<center><h1>502BadGateway</h1></center>
<hr><center>nginx</center>
</body>
</html>
<!--apaddingtodisableMSIEandChromefriendlyerrorpage-->
<!--apaddingtodisableMSIEandChromefriendlyerrorpage-->
<!--apaddingtodisableMSIEandChromefriendlyerrorpage-->
<!--apaddingtodisableMSIEandChromefriendlyerrorpage-->
<!--apaddingtodisableMSIEandChromefriendlyerrorpage-->
<!--apaddingtodisableMSIEandChromefriendlyerrorpage-->

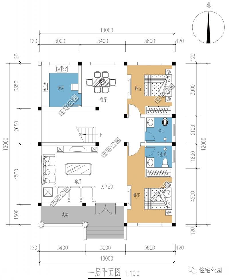
平面布局图:

<html>
<head><title>502BadGateway</title></head>
<body>
<center><h1>502BadGateway</h1></center>
<hr><center>nginx</center>
</body>
</html>
<!--apaddingtodisableMSIEandChromefriendlyerrorpage-->
<!--apaddingtodisableMSIEandChromefriendlyerrorpage-->
<!--apaddingtodisableMSIEandChromefriendlyerrorpage-->
<!--apaddingtodisableMSIEandChromefriendlyerrorpage-->
<!--apaddingtodisableMSIEandChromefriendlyerrorpage-->
<!--apaddingtodisableMSIEandChromefriendlyerrorpage-->

拥有一个比较大的餐厅以及足够的卧室,此外还带有一个大活动室以及棋牌室和日照书房,能够丰富一家人的日常生活。活动室面积较大,能够放置下乒乓球桌或台球桌等。

<html>
<head><title>502BadGateway</title></head>
<body>
<center><h1>502BadGateway</h1></center>
<hr><center>nginx</center>
</body>
</html>
<!--apaddingtodisableMSIEandChromefriendlyerrorpage-->
<!--apaddingtodisableMSIEandChromefriendlyerrorpage-->
<!--apaddingtodisableMSIEandChromefriendlyerrorpage-->
<!--apaddingtodisableMSIEandChromefriendlyerrorpage-->
<!--apaddingtodisableMSIEandChromefriendlyerrorpage-->
<!--apaddingtodisableMSIEandChromefriendlyerrorpage-->

第二套

别墅效果图:简约、经济、实用,贴合广大农村的居住需要,是这套别墅的设计主旨;别墅在建筑配色上,采用明快的黄色,大胆醒目;在室内布局上,棋牌室、露台、阳台等俱全,满足现代生活需要。

<html>
<head><title>502BadGateway</title></head>
<body>
<center><h1>502BadGateway</h1></center>
<hr><center>nginx</center>
</body>
</html>
<!--apaddingtodisableMSIEandChromefriendlyerrorpage-->
<!--apaddingtodisableMSIEandChromefriendlyerrorpage-->
<!--apaddingtodisableMSIEandChromefriendlyerrorpage-->
<!--apaddingtodisableMSIEandChromefriendlyerrorpage-->
<!--apaddingtodisableMSIEandChromefriendlyerrorpage-->
<!--apaddingtodisableMSIEandChromefriendlyerrorpage-->

平面布局图:

<html>
<head><title>502BadGateway</title></head>
<body>
<center><h1>502BadGateway</h1></center>
<hr><center>nginx</center>
</body>
</html>
<!--apaddingtodisableMSIEandChromefriendlyerrorpage-->
<!--apaddingtodisableMSIEandChromefriendlyerrorpage-->
<!--apaddingtodisableMSIEandChromefriendlyerrorpage-->
<!--apaddingtodisableMSIEandChromefriendlyerrorpage-->
<!--apaddingtodisableMSIEandChromefriendlyerrorpage-->
<!--apaddingtodisableMSIEandChromefriendlyerrorpage-->

设计了双入户门,保证进出的便利,当然一些生活必备功能用房全都齐全,厨房并没有与餐厅设为一体,而是作为单独的一个区域划分开来;另外西侧还单独设计了一件卧室,并附有独立卫生间,家里有老人的话能够住在这里。

<html>
<head><title>502BadGateway</title></head>
<body>
<center><h1>502BadGateway</h1></center>
<hr><center>nginx</center>
</body>
</html>
<!--apaddingtodisableMSIEandChromefriendlyerrorpage-->
<!--apaddingtodisableMSIEandChromefriendlyerrorpage-->
<!--apaddingtodisableMSIEandChromefriendlyerrorpage-->
<!--apaddingtodisableMSIEandChromefriendlyerrorpage-->
<!--apaddingtodisableMSIEandChromefriendlyerrorpage-->
<!--apaddingtodisableMSIEandChromefriendlyerrorpage-->

第三套

别墅效果图:这套两层小别墅户型的外观采用了双段式的配色,在一层张贴文化石,而二层则采用了喷涂真石漆。屋顶为棕红色防水波形瓦,整个外观的配色明亮柔和。

<html>
<head><title>502BadGateway</title></head>
<body>
<center><h1>502BadGateway</h1></center>
<hr><center>nginx</center>
</body>
</html>
<!--apaddingtodisableMSIEandChromefriendlyerrorpage-->
<!--apaddingtodisableMSIEandChromefriendlyerrorpage-->
<!--apaddingtodisableMSIEandChromefriendlyerrorpage-->
<!--apaddingtodisableMSIEandChromefriendlyerrorpage-->
<!--apaddingtodisableMSIEandChromefriendlyerrorpage-->
<!--apaddingtodisableMSIEandChromefriendlyerrorpage-->

平面布局图:

<html>
<head><title>502BadGateway</title></head>
<body>
<center><h1>502BadGateway</h1></center>
<hr><center>nginx</center>
</body>
</html>
<!--apaddingtodisableMSIEandChromefriendlyerrorpage-->
<!--apaddingtodisableMSIEandChromefriendlyerrorpage-->
<!--apaddingtodisableMSIEandChromefriendlyerrorpage-->
<!--apaddingtodisableMSIEandChromefriendlyerrorpage-->
<!--apaddingtodisableMSIEandChromefriendlyerrorpage-->
<!--apaddingtodisableMSIEandChromefriendlyerrorpage-->

在平面布局中需要特别强调的是,这款户型没有将主卧设计为带有书房的套间,而是选择在次卧室添加书房,这样设计的原因是带有书房的次卧室能够给子女居住,而独立书房也可作为子女的学习间来使用。

<html>
<head><title>502BadGateway</title></head>
<body>
<center><h1>502BadGateway</h1></center>
<hr><center>nginx</center>
</body>
</html>
<!--apaddingtodisableMSIEandChromefriendlyerrorpage-->
<!--apaddingtodisableMSIEandChromefriendlyerrorpage-->
<!--apaddingtodisableMSIEandChromefriendlyerrorpage-->
<!--apaddingtodisableMSIEandChromefriendlyerrorpage-->
<!--apaddingtodisableMSIEandChromefriendlyerrorpage-->
<!--apaddingtodisableMSIEandChromefriendlyerrorpage-->

第四套

别墅效果图:虽然占地面积很小,但是车库、屋顶花园样样俱全,它的外墙还很洋气的使用了文化石,让这个不大的小别墅相当的接地气。别墅陪小院仿佛是农村住宅最佳的组合,而这个完美的组合恰恰在这套别墅户型上得以体现。

<html>
<head><title>502BadGateway</title></head>
<body>
<center><h1>502BadGateway</h1></center>
<hr><center>nginx</center>
</body>
</html>
<!--apaddingtodisableMSIEandChromefriendlyerrorpage-->
<!--apaddingtodisableMSIEandChromefriendlyerrorpage-->
<!--apaddingtodisableMSIEandChromefriendlyerrorpage-->
<!--apaddingtodisableMSIEandChromefriendlyerrorpage-->
<!--apaddingtodisableMSIEandChromefriendlyerrorpage-->
<!--apaddingtodisableMSIEandChromefriendlyerrorpage-->

平面布局图:

<html>
<head><title>502BadGateway</title></head>
<body>
<center><h1>502BadGateway</h1></center>
<hr><center>nginx</center>
</body>
</html>
<!--apaddingtodisableMSIEandChromefriendlyerrorpage-->
<!--apaddingtodisableMSIEandChromefriendlyerrorpage-->
<!--apaddingtodisableMSIEandChromefriendlyerrorpage-->
<!--apaddingtodisableMSIEandChromefriendlyerrorpage-->
<!--apaddingtodisableMSIEandChromefriendlyerrorpage-->
<!--apaddingtodisableMSIEandChromefriendlyerrorpage-->

入户门在南侧,进门是一个玄关的设置,以便更好的优化风水,避免开门见山,往里走依次是客厅、餐厅、厨房和一个卧室,厨房是半开放式的,能够直接通向后院,通透性很好。

<html>
<head><title>502BadGateway</title></head>
<body>
<center><h1>502BadGateway</h1></center>
<hr><center>nginx</center>
</body>
</html>
<!--apaddingtodisableMSIEandChromefriendlyerrorpage-->
<!--apaddingtodisableMSIEandChromefriendlyerrorpage-->
<!--apaddingtodisableMSIEandChromefriendlyerrorpage-->
<!--apaddingtodisableMSIEandChromefriendlyerrorpage-->
<!--apaddingtodisableMSIEandChromefriendlyerrorpage-->
<!--apaddingtodisableMSIEandChromefriendlyerrorpage-->

第五套

别墅效果图:颇具设计感的外墙给别墅加分不少,双车库的设计避免了停车难的这一问题,而开放式的布局也令宅地规划精致又细腻。

<html>
<head><title>502BadGateway</title></head>
<body>
<center><h1>502BadGateway</h1></center>
<hr><center>nginx</center>
</body>
</html>
<!--apaddingtodisableMSIEandChromefriendlyerrorpage-->
<!--apaddingtodisableMSIEandChromefriendlyerrorpage-->
<!--apaddingtodisableMSIEandChromefriendlyerrorpage-->
<!--apaddingtodisableMSIEandChromefriendlyerrorpage-->
<!--apaddingtodisableMSIEandChromefriendlyerrorpage-->
<!--apaddingtodisableMSIEandChromefriendlyerrorpage-->

平面布局图:

<html>
<head><title>502BadGateway</title></head>
<body>
<center><h1>502BadGateway</h1></center>
<hr><center>nginx</center>
</body>
</html>
<!--apaddingtodisableMSIEandChromefriendlyerrorpage-->
<!--apaddingtodisableMSIEandChromefriendlyerrorpage-->
<!--apaddingtodisableMSIEandChromefriendlyerrorpage-->
<!--apaddingtodisableMSIEandChromefriendlyerrorpage-->
<!--apaddingtodisableMSIEandChromefriendlyerrorpage-->
<!--apaddingtodisableMSIEandChromefriendlyerrorpage-->

卧室设计要求精但不多,所以三个卧室已经足够了;挑空的客厅设计加大了空间使用率,避免出现浪费的情况;二楼窗户尽量都在南面,屋外美景尽览无余。

<html>
<head><title>502BadGateway</title></head>
<body>
<center><h1>502BadGateway</h1></center>
<hr><center>nginx</center>
</body>
</html>
<!--apaddingtodisableMSIEandChromefriendlyerrorpage-->
<!--apaddingtodisableMSIEandChromefriendlyerrorpage-->
<!--apaddingtodisableMSIEandChromefriendlyerrorpage-->
<!--apaddingtodisableMSIEandChromefriendlyerrorpage-->
<!--apaddingtodisableMSIEandChromefriendlyerrorpage-->
<!--apaddingtodisableMSIEandChromefriendlyerrorpage-->

第六套

别墅效果图:半平半坡的雅致二层小别墅,带车壳,大门非常大气,坡顶美观、时尚,平顶露台实用,功能多。两者结合那不要太美!

<html>
<head><title>502BadGateway</title></head>
<body>
<center><h1>502BadGateway</h1></center>
<hr><center>nginx</center>
</body>
</html>
<!--apaddingtodisableMSIEandChromefriendlyerrorpage-->
<!--apaddingtodisableMSIEandChromefriendlyerrorpage-->
<!--apaddingtodisableMSIEandChromefriendlyerrorpage-->
<!--apaddingtodisableMSIEandChromefriendlyerrorpage-->
<!--apaddingtodisableMSIEandChromefriendlyerrorpage-->
<!--apaddingtodisableMSIEandChromefriendlyerrorpage-->

平面布局图:

<html>
<head><title>502BadGateway</title></head>
<body>
<center><h1>502BadGateway</h1></center>
<hr><center>nginx</center>
</body>
</html>
<!--apaddingtodisableMSIEandChromefriendlyerrorpage-->
<!--apaddingtodisableMSIEandChromefriendlyerrorpage-->
<!--apaddingtodisableMSIEandChromefriendlyerrorpage-->
<!--apaddingtodisableMSIEandChromefriendlyerrorpage-->
<!--apaddingtodisableMSIEandChromefriendlyerrorpage-->
<!--apaddingtodisableMSIEandChromefriendlyerrorpage-->

户型上,一楼同样预留老人房,厨房、餐厅、客厅,外加储物间。二楼遮阳大露台也方便晾晒,休闲。

<html>
<head><title>502BadGateway</title></head>
<body>
<center><h1>502BadGateway</h1></center>
<hr><center>nginx</center>
</body>
</html>
<!--apaddingtodisableMSIEandChromefriendlyerrorpage-->
<!--apaddingtodisableMSIEandChromefriendlyerrorpage-->
<!--apaddingtodisableMSIEandChromefriendlyerrorpage-->
<!--apaddingtodisableMSIEandChromefriendlyerrorpage-->
<!--apaddingtodisableMSIEandChromefriendlyerrorpage-->
<!--apaddingtodisableMSIEandChromefriendlyerrorpage-->

第七套

别墅效果图:简洁而不失雅致,优雅而内敛的双层别墅,曲度优美的弧形窗,典型西式风格的罗马柱,鲜艳的红屋顶,充满了浓郁的西式田园风格。该户型空间布局工整紧凑,外观雅致,造型简洁。

<html>
<head><title>502BadGateway</title></head>
<body>
<center><h1>502BadGateway</h1></center>
<hr><center>nginx</center>
</body>
</html>
<!--apaddingtodisableMSIEandChromefriendlyerrorpage-->
<!--apaddingtodisableMSIEandChromefriendlyerrorpage-->
<!--apaddingtodisableMSIEandChromefriendlyerrorpage-->
<!--apaddingtodisableMSIEandChromefriendlyerrorpage-->
<!--apaddingtodisableMSIEandChromefriendlyerrorpage-->
<!--apaddingtodisableMSIEandChromefriendlyerrorpage-->

平面布局图:

<html>
<head><title>502BadGateway</title></head>
<body>
<center><h1>502BadGateway</h1></center>
<hr><center>nginx</center>
</body>
</html>
<!--apaddingtodisableMSIEandChromefriendlyerrorpage-->
<!--apaddingtodisableMSIEandChromefriendlyerrorpage-->
<!--apaddingtodisableMSIEandChromefriendlyerrorpage-->
<!--apaddingtodisableMSIEandChromefriendlyerrorpage-->
<!--apaddingtodisableMSIEandChromefriendlyerrorpage-->
<!--apaddingtodisableMSIEandChromefriendlyerrorpage-->

入户的客厅设计,较好地保障了业主的私人空间,也能及时招待客人。主卧自带卫生间,次卧也设计在离卫生间很近的地方,方便业主日常生活。

<html>
<head><title>502BadGateway</title></head>
<body>
<center><h1>502BadGateway</h1></center>
<hr><center>nginx</center>
</body>
</html>
<!--apaddingtodisableMSIEandChromefriendlyerrorpage-->
<!--apaddingtodisableMSIEandChromefriendlyerrorpage-->
<!--apaddingtodisableMSIEandChromefriendlyerrorpage-->
<!--apaddingtodisableMSIEandChromefriendlyerrorpage-->
<!--apaddingtodisableMSIEandChromefriendlyerrorpage-->
<!--apaddingtodisableMSIEandChromefriendlyerrorpage-->

你最喜欢哪一套呢?

微信公众号:住宅公园,500套别墅图纸,别墅庭院设计施工。