案例基本信息
☑ 占地尺寸:11.6x10.8米
☑ 占地面积:125㎡
☑ 建筑面积:375㎡
☑ 建筑情况:7室2厅5卫1餐厅1厨房1书房
☑ 建筑结构:砖混结构
☑ 造价估算:34万
设计说明:
本案例为三层简欧住宅,半圆形飘窗设计赋予浪漫色彩。欧式住宅在国内非常受欢迎,主要是因为它自带的一种贵族气质并且建筑能够与外界能够很好的融为一体。

效果图

别墅整体较为规整,整齐的线脚区分外观层次,门廊的罗马柱与护栏均为欧式风格的经典特色,有了这些显得别墅更加气派豪华。


红色瓦片屋顶恰到好处的提升了整体建筑的明艳度。
别墅屋檐平缓宽大,在发挥遮风挡雨的功能之余成了该案例的主要点缀之一,丰富了别墅正面层次。

别墅为坡顶,因此三层高度明显偏低,节省了不必要的施工量。
平面图
一层过厅直通楼梯上下不必穿越干扰多余空间,出行方便;客厅与过厅共处同一开放空间扩大客厅活动范围,丰富过厅内容,不显单一突兀。

▲ 一层平面图
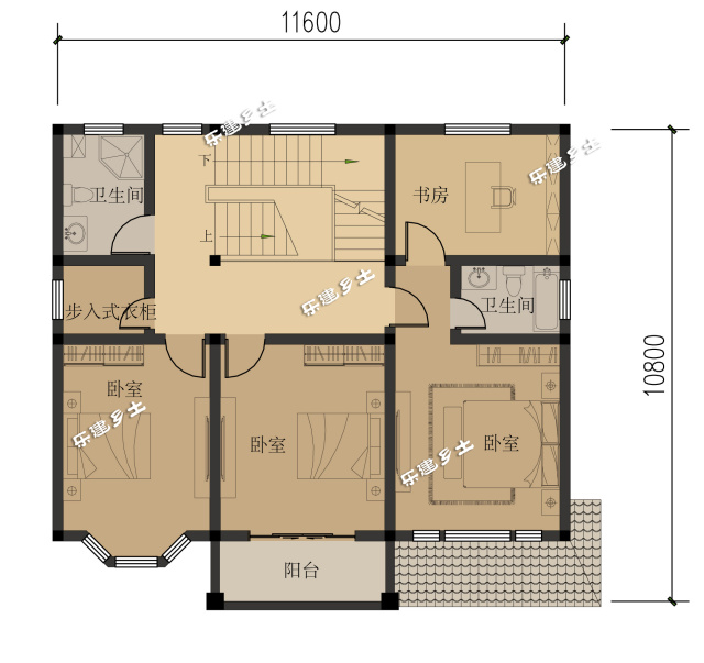
二层三个卧室均向阳,布局整齐合理,主卧自带卫生间与书房,功能丰富。

▲ 二层平面图
三层露台与楼梯将空间左右分隔,两卫生间对称设在两边方便使用,露台可供家人休闲,享受日照。

▲ 三层平面图
立面图

▲ 南立面

▲ 北立面

▲ 东立面

▲ 西立面
该案例在外观设计上相对讲究,精致,平面布局设计合理,七室五卫,符合当下农村需求。
查看更多建房设计案例,关注乐建乡土头条号 | 微信公众号:乐建乡土