今天分享给大家的这套复式小户型案例,只有58个平方,但是土拨鼠网设计师却把它做出了三间房,每个房间的采光都非常不错,虽然房子面积不算很大,但各类需求都得到了满足,还非常的温馨、舒适,赶紧一起来看看这套房子的模样吧!

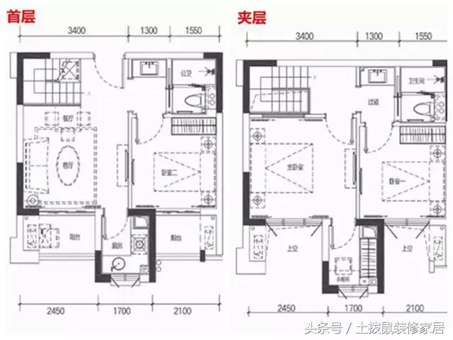
平面图
平面布置图

玄关
进门就是楼梯,利用了楼梯下方的空间来做鞋柜和收纳柜,小客厅靠着楼梯,迷你的茶几很合适小户型。

客厅
客厅空间比较小,背景墙是壁纸加上挂画,整体的颜色搭配就是暖色系和绿色系的搭配,显得温馨而又清新。

厨房
位于两个阳台中间的厨房,为了避免油烟的问题,没有选择开放式的设计。L型的橱柜布局是最合适小户型的,操作空间更多。

卫生间
一楼的卫生间是把洗手台放在了门外,作为公卫的卫生间,洗手台放在门外也更方便一家人的洗漱。

卧室
一楼的卧室外还有一个小阳台,卧室内部的空间不是很大,但很喜欢这套房子的软装,绿色系的床品非常有小清新的感觉。

卧室
二楼的两间卧室同样没有很宽敞,但58平的面积能够挤出三间房已经是很不容易的事情了,加上三间卧室的采光都非常不错,不会压抑。

书房
主卧室还有一个独立的延伸空间,就是厨房上方的空间,齐家网设计师是把它设计成了衣帽间加小书房的设计,靠窗的位置摆张书桌,看书也舒服。

卫生间
楼梯和二楼的卫生间,转角的楼梯能够减少空间的使用,而且楼梯下方的空间也都被用来做储物了,没有任何浪费。