
住宅外观 ©Joan Guillamat
住宅位于西班牙Minorca北海岸的山坡上。这座新住宅的建造技术和材料与环绕岛上大部分农田的古老石灰岩墙相同。其叠加的石层(立面和栅栏)将建筑和景观相互融合。这种共生关系进一步通过加强建造方式体现了出来,项目立面的石材完全取自于附近场地中挖掘的石块。

住宅外观 ©Joan Guillamat

街道一侧入口©Joan Guillamat
从住宅100平方米的宽敞门廊处,住户能够俯瞰Minorca最壮美的悬崖或欣赏日落。这个室内/室外空间是厨房、餐厅和客厅的延伸,因此是大多数社交聚会的场所。它也能够理解为一个可自由布置的大面积通用空间,允许灵活的规划,连接和不同的活动区域,作为住宅与自然的通道。由于该房间设有可开启的双层玻璃立面墙,它能够实现一个真正的热缓冲区的功能,在温暖的季节成为一个舒适的冬季花园,在炎热的夏天成为新遮阳门廊,在冬天也起到优良的室内保温系统。在花园里,野生橄榄树和当地植被环绕着一个巨大的石灰岩平台,平台上是一个灰色石材覆盖的泳池。

宽敞的门廊©Joan Guillamat

双层玻璃墙让空间具有热缓冲功能©Joan Guillamat

可作为连接不同通道的区域©Joan Guillamat

厨房、起居室的延伸空间©Joan Guillamat

悬崖坡上的住宅 ©Joan Guillamat
按照业主的要求,该住宅拥有六个卧室,客厅,餐厅,厨房,车库和辅助房间。所有的这些都是围绕在物理和视觉上将两层联系到一起的通高空间组织布局。由于上层大面积玻璃的窗户,这个通高空间成为了整个房子非常明亮的采光井为,否则其深度可能造成内部空间缺乏光线。因此,所有别墅的交通区域都旋转围绕着这一贯通空间,避免产生黑暗狭窄的走廊并激活了内部核心区域。

通高空间组织布局©Joan Guillamat

明亮的采光井©Joan Guillamat
与立面的泥土色调类似,室内是连续的沙色混凝土路面、*粉白**刷过的墙壁、松木木工制品和白色木梁的组合。这些天然材料创造了一个既温暖又通风的良好环境。坚实的悬停楼梯与扶手创造了一个传统和现代建筑有趣的对话。所有的内置厨房家具、衣柜、图书馆和壁龛都是用石材砌筑而成,保持了主体简洁的风格。此外,整个房屋还设计了柔和的间接照明,避免在墙壁和横梁天花板上放置裸露的照明设备。

室内框景©Joan Guillamat

室内©Joan Guillamat
业主十分希望住宅能够以当地传统建筑为参照,因此建筑师的挑战是让住宅不沦为一个完全的复制品。立面构成部分重新诠释了Minorca当地人用白色灰泥构筑窗户和边缘的习惯,从而打造出米白色灰泥和浅色石材的几何拼贴。纤细的框架超出实体立面,避免窗户受到日照直射并进一步辅助可折叠的木质百叶窗系统。为了加强这种厚重与纤细的对比,所有的窗户都与内部齐平,窗户框架从外部嵌入,形成在石墙上开洞的错觉。

米白色灰泥和浅色石材的几何拼贴©Joan Guillamat

纤细的框架超出实体立面©Joan Guillamat

与内部齐平的窗户©Joan Guillamat
以传统建筑的结实性与紧凑性为灵感,使用现代建造系统,住宅在可持续性方面达到了最高水平。其高度隔热的外表、立面实体与玻璃的比例、灵活的遮阳技术保证了全年舒适性的温度。

露台夜景©Joan Guillamat

街道一侧夜景©Joan Guillamat

泳池一侧傍晚景色©Joan Guillamat

可看到海景夜景©Joan Guillamat

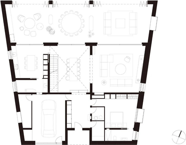
首层平面图©NOMO STUDIO

二层平面图©NOMO STUDIO

北立面图©NOMO STUDIO

西立面图©NOMO STUDIO

剖面图©NOMO STUDIO
项目信息
项目名称:独栋住宅
设计师:NOMO STUDIO
团队:Karl Johan Nyqvist, Mira Botseva, Jennifer Méndez
合作者:Building Engineers Mus&Segui, Landscaping by Cristina Gil de Biedma & Bárbara Saavedra
面积:450m2
位置:Minorca, Spain
合伙人:艾丽西亚·卡萨尔斯
项目负责人:Alicia Casals
摄影:Joan Guillamat
关于NOMO STUDIO
NOMO工作室位于巴塞罗那和斯德哥尔摩,是一个由建筑师和设计师构成的团队,涉及建筑、城市化、图形/产品设计和社会研究等多个领域。目前在欧洲各地参与了一系列项目,包括私人别墅、住宅区、展馆、博物馆、学校、艺术/文化中心以及景观和总体规划。此外,NOMO的整体方法引导设计看台、水龙头、书籍,甚至在边缘化的郊区进行干预。所有阶段都与客户密切合作,提供由BIM/Revit技术支持的完全项目管理服务。